Проект современного двухэтажного дома в стиле хай-тек с 4 комнатами
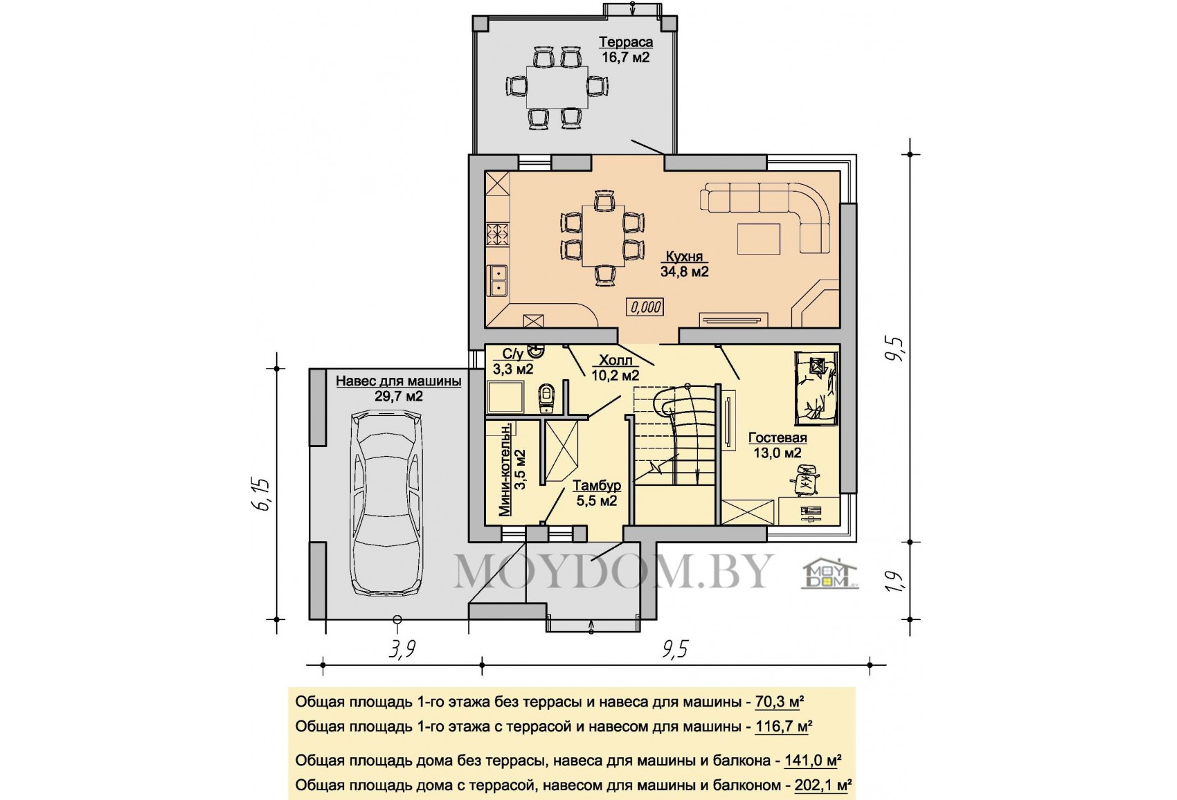
Планировка дома



Описание проекта №611
Представляем вам современный проект двухэтажного дома с плоской крышей и навесом в стиле "хай-тек". Это проект дома - "родственник" знаменитого проекта 95, только с плоской кровлей и навесом для машины. В этом проекте сделали смелое решение по цветовой гамме. Рыжие полосы и тёмный фон эффектно контрастируют друг с другом. Фасад навесной, облицован керамогранитом, кстати, весьма сопоставимое по цене решение в сравнении с обычной штукатуркой. За облицовкой находится лёгкий утеплитель толщиной 50 мм. При желании можем внести небольшие изменения в проект двухэтажного дома. Плоская крыша с наплавляемым гидроизоляционным ковром весьма надёжное решение, отработанное годами. Этот стильный двухэтажный дом имеет навес на одну машину, террасу, 2 балкона на втором этаже. Дом очень удобен для постоянного проживания. Кстати, навес можно легко переделать в гараж.
С другими проектами домов вы можете ознакомиться в каталоге на нашем сайте.
Фото строящегося дома


Характеристики проекта дома
| Кровля | Плоская кровля с покрытием: пвх мебрана или битумная рулонная гидроизоляция |
| Жилая площадь, м.кв. | 96.4 |
| Количество спален | 3, 4 |
| Общая площадь, м.кв. | 140.9 дом + 29,7 навес для машины |
| Количество жилых этажей | 2 |
| Фундамент | Плита толщ 20 см с МЗФЛ. Буронобивные сваи -опция |
| Наличие подвала | Нет |
| Наличие гаража | Навес для машины |
| Материал стен | Блоки, Газосиликат, Арболит, Кирпич, Керамзитобетон |
| Толщина стен, мм. | 400 |
* - "Коробка дома" под чистовую отделку из расчёта от 250 USD за 1м.кв. по внешнему контуру дома включает в себя работу и материалы (фундамент, стены без штукатурки, перекрытия, кровля, утеплитель для перекрытия). Для России стоимость 1 м.кв. "коробки дома" от 40000 рос. руб. Данные актуальны на сегодняшний день. В стоимость не входят окна, черновая стяжка, чистовая отделка. Ориентировочная стоимость с сетями и отделкой – около 600 - 900 USD за 1 м.кв.












