Проект двухэтажного дома в средиземноморском стиле с большой террасой и панорамными окнами
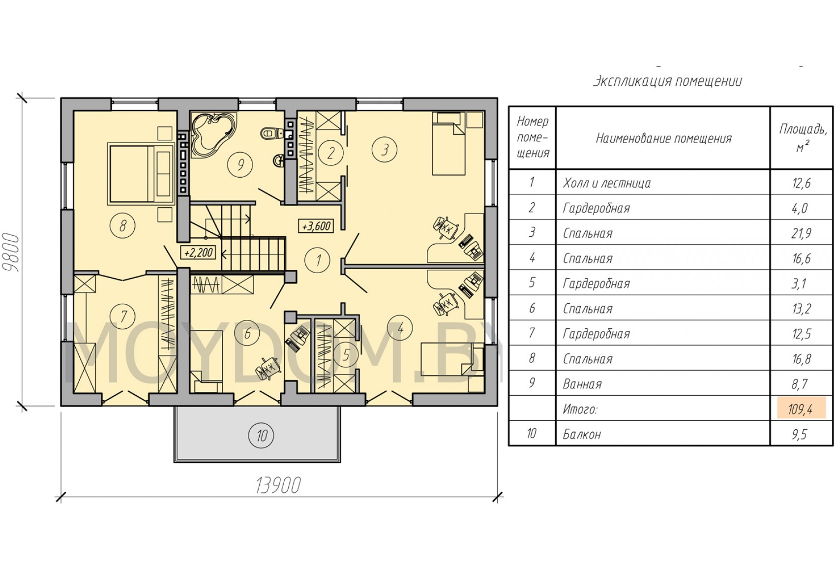
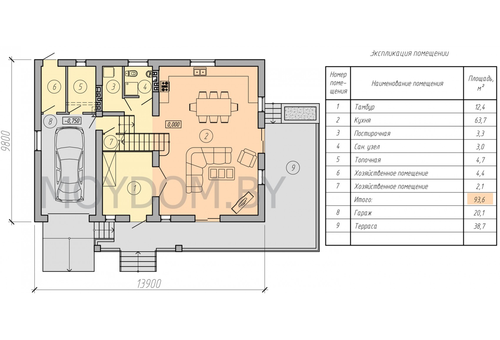
Планировка дома


Зеркальный проект дома
Описание проекта №46
Характеристики проекта дома
| Кровля | Металлочерипица |
| Жилая площадь, м.кв. | 122,1 |
| Площадь гаража, хоз постройки | 20.1; 4.4 |
| Количество спален | 4 |
| Общая площадь, м.кв. | 203,0 дом + 20,1 гараж |
| Количество жилых этажей | 2 |
| Фундамент | Ленточный, Буронабивные сваи |
| Наличие подвала | Нет |
| Наличие гаража | Есть |
| Материал стен | Газосиликат, Кирпич, Керамзитобетон, Арболит |
| Толщина стен, мм. | 400, 500 |
| Возможность переделки данного проекта | Да |
* - "Коробка дома" под чистовую отделку из расчёта от 250 USD за 1м.кв. по внешнему контуру дома включает в себя работу и материалы (фундамент, стены без штукатурки, перекрытия, кровля, утеплитель для перекрытия). Для России стоимость 1 м.кв. "коробки дома" от 40000 рос. руб. Данные актуальны на сегодняшний день. В стоимость не входят окна, черновая стяжка, чистовая отделка. Ориентировочная стоимость с сетями и отделкой – около 600 - 900 USD за 1 м.кв.




