Проект двухэтажного дома с гаражом
Планировка дома


Зеркальный проект дома
Описание проекта №40
Комфортный, компактный дом, в буквальном смысле пронизанный светом. Он спроектирован таким образом, чтобы максимально ощутить единение с природой – это и очертания крыльца с клумбой, и двухуровневый эркер с большими панорамными окнами, и изящная терраса, и балкон на втором этаже. Даже пристроенный гараж не воспринимается как нечто чужеродное - он также смотрится вполне гармонично. Этот двухэтажный проект дома отлично подойдет тем, для кого важна не только практичность, но и визуальная составляющая.
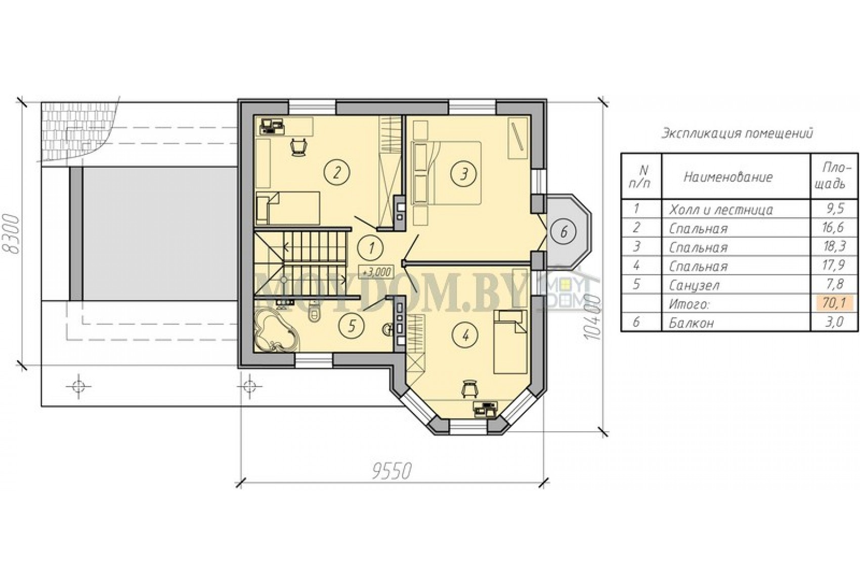
Пройдемся немного по дому. При входе расположена большая гардеробная, где можно хранить как текущую одежду, так и вещи не по сезону. Прямо по коридору игровая комната, спроектированная так, чтобы детей было видно из просторной кухни-столовой. Гостиная с камином и кухня-столовая сообщаются раздвижными дверями. После жаркого дня приятно провести вечер на уютной террасе, выйти на которую можно из гостиной. Второй этаж подарит вам три просторных спальни, большой санузел. Из холла на втором этаже можно выйти на небольшой общий балкон. По всему дому расположены большие окна, дающие много дневного света.
Как видите, этот дом заслуживает того, чтобы о нем столько написать. Он, безусловно, радует глаз и сердце, и этого не станешь отрицать.
Фото строящегося дома




Характеристики проекта дома
| Кровля | Металлочерипица |
| Жилая площадь, м.кв. | 91,8 |
| Площадь гаража, хоз постройки | 28,5 |
| Количество спален | 3, 4 |
| Общая площадь, м.кв. | 140,0 дом + 28,5 гараж |
| Количество жилых этажей | 2 |
| Фундамент | Ленточный, Буронабивные сваи |
| Наличие подвала | Нет |
| Наличие гаража | Есть |
| Материал стен | Газосиликат, Кирпич, Арболит, Керамзитобетон |
| Толщина стен, мм. | 400, 500 |
| Возможность переделки данного проекта | Да |
* - "Коробка дома" под чистовую отделку из расчёта от 250 USD за 1м.кв. по внешнему контуру дома включает в себя работу и материалы (фундамент, стены без штукатурки, перекрытия, кровля, утеплитель для перекрытия). Для России стоимость 1 м.кв. "коробки дома" от 40000 рос. руб. Данные актуальны на сегодняшний день. В стоимость не входят окна, черновая стяжка, чистовая отделка. Ориентировочная стоимость с сетями и отделкой – около 600 - 900 USD за 1 м.кв.



