Проект двухэтажного современного дома в стиле хайтек
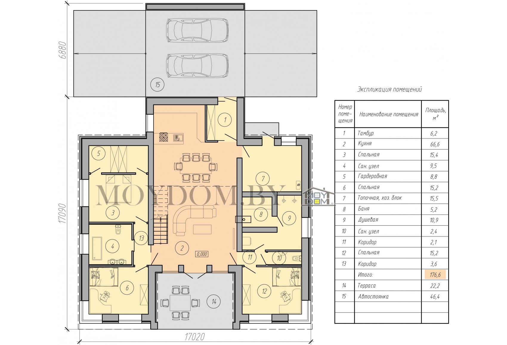
Планировка дома



Зеркальный проект дома
Описание проекта №692
Проект двухэтажного современного дома с плоской крышей и террасой - это идеальный вариант для тех, кто хочет одновременно вложить средства в ликвидную недвижимость и заодно насладиться комфортным проживанием. Этот проект современного двухэтажного дома создан в стиле хай-тек. Крыша выполнена из современных и долговечных материалов. Планировка нетипичная для двухэтажного дома: гостиная со вторым светом объединена с кухней, семь спален, хозяйственные и служебные помещения. Из главных достоинств –баня, автостоянка и тренажерный зал. По сути, этот дом может использоваться как гостевой дом, доходный дом, дом для агротуризма, который включает в себя один двухкомнатный номер и четыре (пять) однокомнатных номеров (апартаментов) со своим санузлом. В несезон может использоваться для проведения свадеб и торжеств, а может использоваться просто для круглогодичного проживания большой семьи. Этот двухэтажный дом будет отлично смотреться практически в любом застройке и впишется как в городской, так и загородный ландшафт.
Теги: 20 на 20, от 250 кв.м., 7 спален, хайтек, с плоской кровлей, второй свет, современный, с баней, с сауной, с автостоянкой, с гаражом, с террасой, с тренажерным залом, с балконом, элитный, с окнами в пол, с панорамными окнами, с угловыми окнами.
Характеристики проекта дома
| Кровля | Плоская кровля с покрытием: пвх мебрана или битумная рулонная гидроизоляция |
| Количество спален | 7 |
| Общая площадь, м.кв. | 308,9 дом + 46,4 автостоянка на 2 машины |
| Количество жилых этажей | 2 |
| Фундамент | Полнотелая плита |
| Наличие подвала | Нет |
| Наличие гаража | Автостоянка |
| Материал стен | Газосиликат, Кирпич, Арболит, Керамзитобетон |
| Толщина стен, мм. | 400 |
| Возможность переделки данного проекта | Да |
* - "Коробка дома" под чистовую отделку из расчёта от 250 USD за 1м.кв. по внешнему контуру дома включает в себя работу и материалы (фундамент, стены без штукатурки, перекрытия, кровля, утеплитель для перекрытия). Для России стоимость 1 м.кв. "коробки дома" от 40000 рос. руб. Данные акутальны на сегодняшний день. В стоимость не входят окна, черновая стяжка, чистовая отделка. Ориентировочная стоимость с сетями и отделкой – около 600 - 900 USD за 1 м.кв.















