Современный дом с гостиной и вторым светом
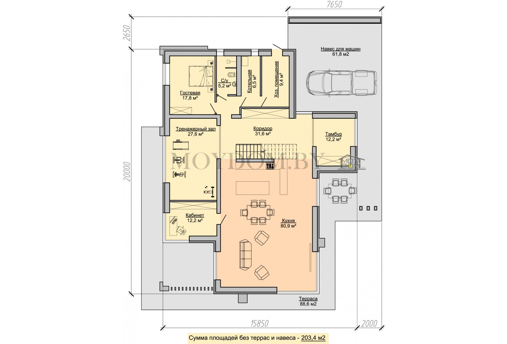
План первого этажа

План второго этажа
Зеркальный проект дома


Большой дом для большой семьи общей площадью 350 кв.м. Два жилых этажа вмещают в себя от 4 до 6 спален, в зависимости от вашей необходимости. Этот проект предусматривает внесение изменений и возможность получить его в зеркальном отображении.
Центральная входная группа совмещена с открытой террасой, которая продлена на три стороны дома и составляет в длину 88,6 метров. Со стороны гостиной есть также еще один выход с террасы в дом. Длинная терраса – отличительная черта данного проекта, делающая его еще привлекательнее.Сбоку от главного входа предусмотрен навес на два автомобиля площадью 61,8 «квадратов». Изнутри дома он соседствует с хозпомещением, так что не будет никакого дискомфорта для находящихся в жилых комнатах. Также, выйдя из машины, можно через него попасть в дом, оставив там вещи, например, мокрые зонты, грязную обувь и пр.
В проекте современного двухэтажного дома со вторым светом в гостиной использованы качественные строительные и отделочные материалы. Само строение исполнено в лаконичном выдержанном стиле хай-тек, а наличие верхнего света оставляет много открытого пространства, благодаря которому в доме светлей и больше воздуха.
Первый этаж включает в себя кабинет, тренажерный зал, спальню для гостей, санузел, котельную, хозяйственное помещение с отдельным входом в него. Центральное место в доме по праву занимает гостиная-столовая с современным кухонным оборудованием. Лестница на второй этаж спрятана в коридоре, который прямой линией соединяет вход и тренажерный зал. В зависимости от ваших желаний и потребностей комнаты первого этажа могут быть спроектированы с другим назначением. Большая совмещенная кухня-столовая-гостиная площадью 80,9 кв.м. дает простор для дизайнерских решений. А выход на террасу, которую можно сделать закрытой или оставить открытой, позволит наслаждаться видами на сад за чашкой ароматного кофе.
Второй этаж состоит из трех малых спальных комнат и одной большой хозяйской. Хозяйская спальня вмещает помимо спальной зону гардеробной и санузел, а также великолепный большой балкон. Для остальных спален – еще один санузел. В одной из малых спален есть выход на балкон.
Также на втором этаже предусмотрен еще один кабинет, совмещенный балконом с хозяйской спальней. Если семья активно работает и дома, два кабинета - отличный вариант, чтобы не создавать график.
Как видно из проекта, двухэтажный дом имеет несколько черт, выгодно отличающих его от других. Это обширная терраса, почти опоясывающая дом, большой видовой балкон на втором этаже, соединяющий хозяйскую спальню и рабочий кабинет. Все здесь предусмотрено для удобства и комфорта семьи, выбравшей этот дом.
Характеристики проекта дома
| Кровля | Покрытие кровли - наплавляемая битумная рулонная гидроизоляция |
| Площадь гаража, хоз постройки | 61.8 |
| Количество спален | 4, 5, 6, 8 |
| Общая площадь, м.кв. | 350 дом + 61,8 навес для машины |
| Количество жилых этажей | 2 |
| Высота 1-го этажа, м. | 2.9 |
| Тип кровли | Плоская |
| Фундамент | Ребристая плита |
| Наличие подвала | Нет |
| Наличие гаража | Навес для машины |
| Материал стен | Керамзитобетон |
| Толщина стен, мм. | 400 |
| Наружная отделка | Навесной фасад |
| Возможность переделки данного проекта | Да |
* - "Коробка дома" под чистовую отделку из расчёта от 250 USD за 1м.кв. по внешнему контуру дома включает в себя работу и материалы (фундамент, стены без штукатурки, перекрытия, кровля, утеплитель для перекрытия). Для России стоимость 1 м.кв. "коробки дома" от 40000 рос. руб. Данные актуальны на сегодняшний день. В стоимость не входят окна, черновая стяжка, чистовая отделка. Ориентировочная стоимость с сетями и отделкой – около 600 - 900 USD за 1 м.кв.







