Проект двухэтажного дома в средиземноморском стиле с бассейном в доме
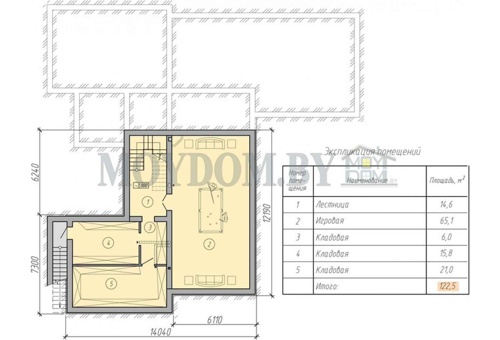
Планировка дома



Зеркальный проект дома
Описание проекта №114
Проект двухэтажного дома, исполненый в средиземноморском стиле, весьма эксклюзивный. Если коротко, то этому стилю присущи такие черты: светлое, почти белое, цветовое решение фасада, кровля с небольшим наклоном, большие открытые лоджии, с частичным навесом от солнца большая открытая терраса над гаражом. Внутри дома, в соответствии со стилем, большое пространство кухни-столовой-гостиной – 100 кв.м., где много окон и выход на террасы.В доме есть подвал, в котором разместились кладовые и игровая комната. Обустройство его ограничивается лишь вашей фантазией. На первом этаже, помимо кухни-гостиной-столовой, объединенных в единое цельное пространство, спроектированы бассейн, тренажерный зал и сауна! В глубине дома лестница ведет на второй этаж, где вас ждут три довольно больших спальни плюс однахозяйскаяспальня со своими балконом, санузлом и гардеробом. Также в наличии еще один большой санузел. Две спальни имеют выход на общий балкон, а из холла можно попасть на большую террасу над гаражом.Комфортная и роскошная жизнь за городом в этом доме вам обеспечена.
Пожалуй, это один из лучших моих проектов. Ещё и строиться быстро, – что ещё нужно для счастья архитектора. Дом растёт как ребёнок, не по дням, а по часам ).
С другими проектами двухэтажных домов, разработанных нашими архитекторами, смотрите в разделе проекты двухэтажных домов.





Фото построенного дома в Раубичах



Фото строящегося дома
Теги: 20 на 20, от 250 кв.м., с 4-х скатной кровлей, в средиземноморском стиле, 4 спальни, с подвалом, с гаражом, с сауной, с бассейном, с тренажерным залом, элитный, с большими окнами, террасой, с лоджией
Характеристики проекта дома
| Кровля | Металлочерипица |
| Жилая площадь, м.кв. | 94,4 |
| Площадь гаража, хоз постройки | 51,1 |
| Количество спален | 4 |
| Общая площадь, м.кв. | 510,9 дом + 51,1 гараж на 2 машины |
| Количество жилых этажей | 2 |
| Фундамент | Буронабивные сваи |
| Наличие подвала | Есть |
| Бассейн | Есть |
| Наличие гаража | Есть |
| Материал стен | Газосиликат, Арболит, Кирпич, Керамзитобетон |
| Толщина стен, мм. | 500 |
| Возможность переделки данного проекта | Да |
* - "Коробка дома" под чистовую отделку из расчёта от 250 USD за 1м.кв. по внешнему контуру дома включает в себя работу и материалы (фундамент, стены без штукатурки, перекрытия, кровля, утеплитель для перекрытия). Для России стоимость 1 м.кв. "коробки дома" от 40000 рос. руб. Данные акутальны на сегодняшний день. В стоимость не входят окна, черновая стяжка, чистовая отделка. Ориентировочная стоимость с сетями и отделкой – около 600 - 900 USD за 1 м.кв.






















