Проект дома в средиземноморском стиле
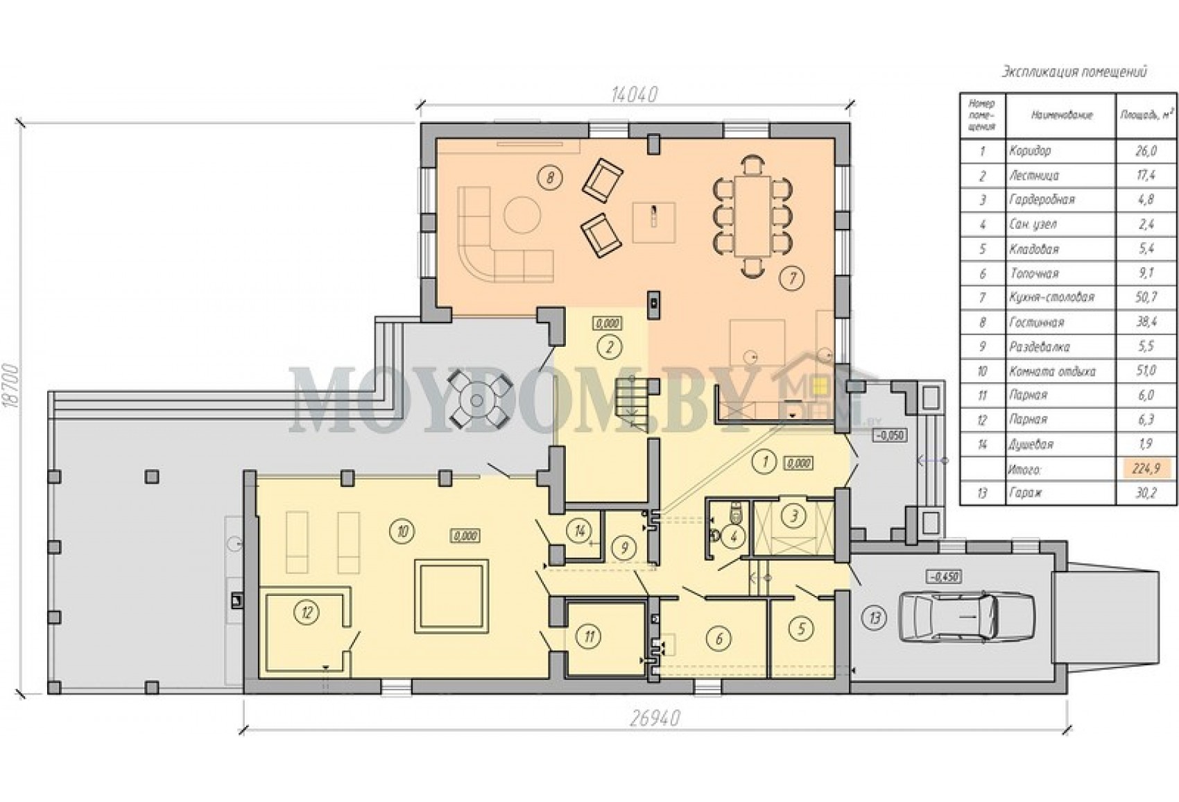
Планировка дома


Зеркальный проект дома
Описание проекта №114-A
Представленный проект двухэтажного дома с гаражом - один из самых роскошных проектов в средиземноморском стиле в каталоге нашей мастерской. Дом этого проекта находится в стадии строительства, строится быстро, что очень приятно. Общая площадь двухэтажного дома огромная - 422,9 кв.м. Планировка дома очень продуманная, поэтому в таком большом доме комфортно жить, работать и отдыхать. Внешне дом выглядит очень солидно и богато. На такой площади отлично разместились комната отдыха, парные, кухня и гостиная, спальни, а также все служебные и хозяйственные помещения. Также в проекте есть гараж на 1 машину, из которого можно попасть прямо в дом, не выходя на улицу. Проект двухэтажного дома выполнен в средиземноморском стиле и весьма эксклюзивный. Если коротко, то этому стилю присущи такие черты: светлое, солнечное цветовое решение фасада в белом обрамлении больших окон, кровля с небольшим наклоном, большая терраса, выход на которую есть из гостиной и комнаты отдыха.Такой двухэтажный дом понравится тем, кто привык все делать с размахом и по максимуму.
С другими проектами двухэтажных домов, разработанных нашими архитекторами, можно ознакомиться в разделе проектов двухэтажных домов.


Характеристики проекта дома
| Кровля | Металлочерипица |
| Жилая площадь, м.кв. | 144,7 |
| Площадь гаража, хоз постройки | 30.2 |
| Количество спален | 4 |
| Общая площадь, м.кв. | 392,4 дом + 30,2 гараж |
| Количество жилых этажей | 2 |
| Фундамент | Ленточный |
| Наличие подвала | Нет |
| Наличие гаража | Есть |
| Материал стен | Газосиликат, Кирпич, Керамзитобетон, Арболит |
| Толщина стен, мм. | 400 |
| Возможность переделки данного проекта | Да |
* - "Коробка дома" под чистовую отделку из расчёта от 250 USD за 1м.кв. по внешнему контуру дома включает в себя работу и материалы (фундамент, стены без штукатурки, перекрытия, кровля, утеплитель для перекрытия). Для России стоимость 1 м.кв. "коробки дома" от 40000 рос. руб. Данные актуальны на сегодняшний день. В стоимость не входят окна, черновая стяжка, чистовая отделка. Ориентировочная стоимость с сетями и отделкой – около 600 - 900 USD за 1 м.кв.



