Проект двухэтажного дома с мансардой и террасой
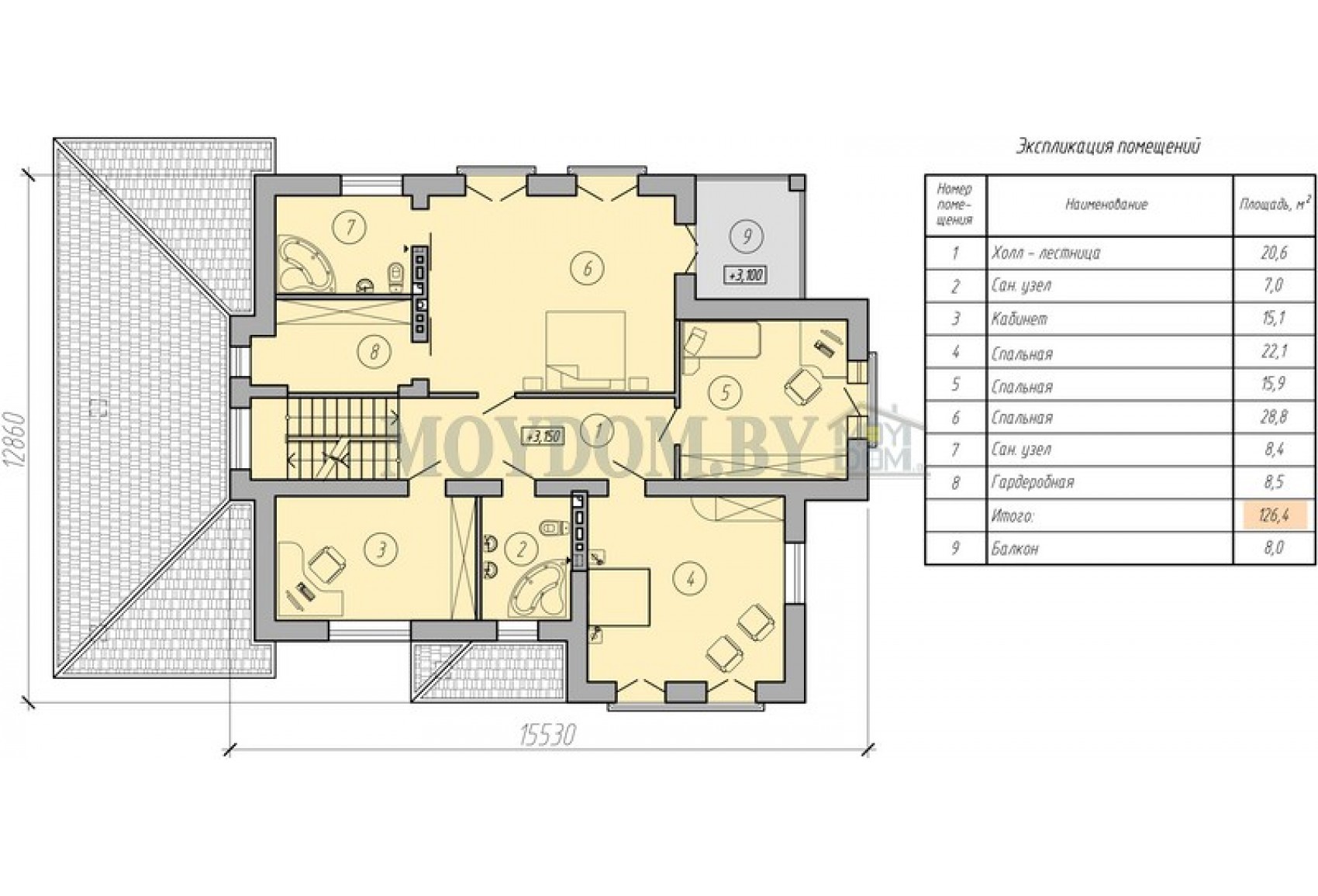
Планировка дома





Зеркальный проект дома
Описание проекта №109-1
Большой, удобный, красивый двухэтажный дом для большой семьи. Редкое сочетание внутреннего комфорта и внешней красоты – вот что представляет собой этот двухэтажный типовой проект дома, в котором спланированы также жилая мансардаи открытая солнцу терраса. Что немаловажно – это дом с пристроенным гаражом на две машины, которые не будут стоять под дождем и солнцем, а будут так же защищены, как и жители дома.
Помещения дома просторны и светлы благодаря планировке и большому количеству окон. Проектом этого двухэтажного дома предусмотрена также мансарда, обустроить которую можно по собственому усмотрению. Площадь жилых помещений составляет 136 м2, при этом и вспомогательные помещения также достаточно просторны – например, площадь холла у лестницы, ведущей на второй этаж, равна 19,5 м2, чтобы жителям дома было комфортно и удобно, ведь наверняка в таком доме будет жить большая дружная семья.
Характеристики проекта дома
| Кровля | Металлочерипица |
| Жилая площадь, м.кв. | 136.4 |
| Количество спален | 4, 5 |
| Общая площадь, м.кв. | 233.3 |
| Количество жилых этажей | 2 + мансарда |
| Фундамент | Буронабивные сваи, Ленточный |
| Наличие подвала | Нет |
| Наличие гаража | Навес для машины |
| Материал стен | Кирпич, Газосиликат, Арболит, Керамзитобетон |
| Толщина стен, мм. | 400, 500 |
| Возможность переделки данного проекта | Да |
* - "Коробка дома" под чистовую отделку из расчёта от 250 USD за 1м.кв. по внешнему контуру дома включает в себя работу и материалы (фундамент, стены без штукатурки, перекрытия, кровля, утеплитель для перекрытия). Для России стоимость 1 м.кв. "коробки дома" от 40000 рос. руб. Данные актуальны на сегодняшний день. В стоимость не входят окна, черновая стяжка, чистовая отделка. Ориентировочная стоимость с сетями и отделкой – около 600 - 900 USD за 1 м.кв.








