Проект дома с навесом на две машины и террасой
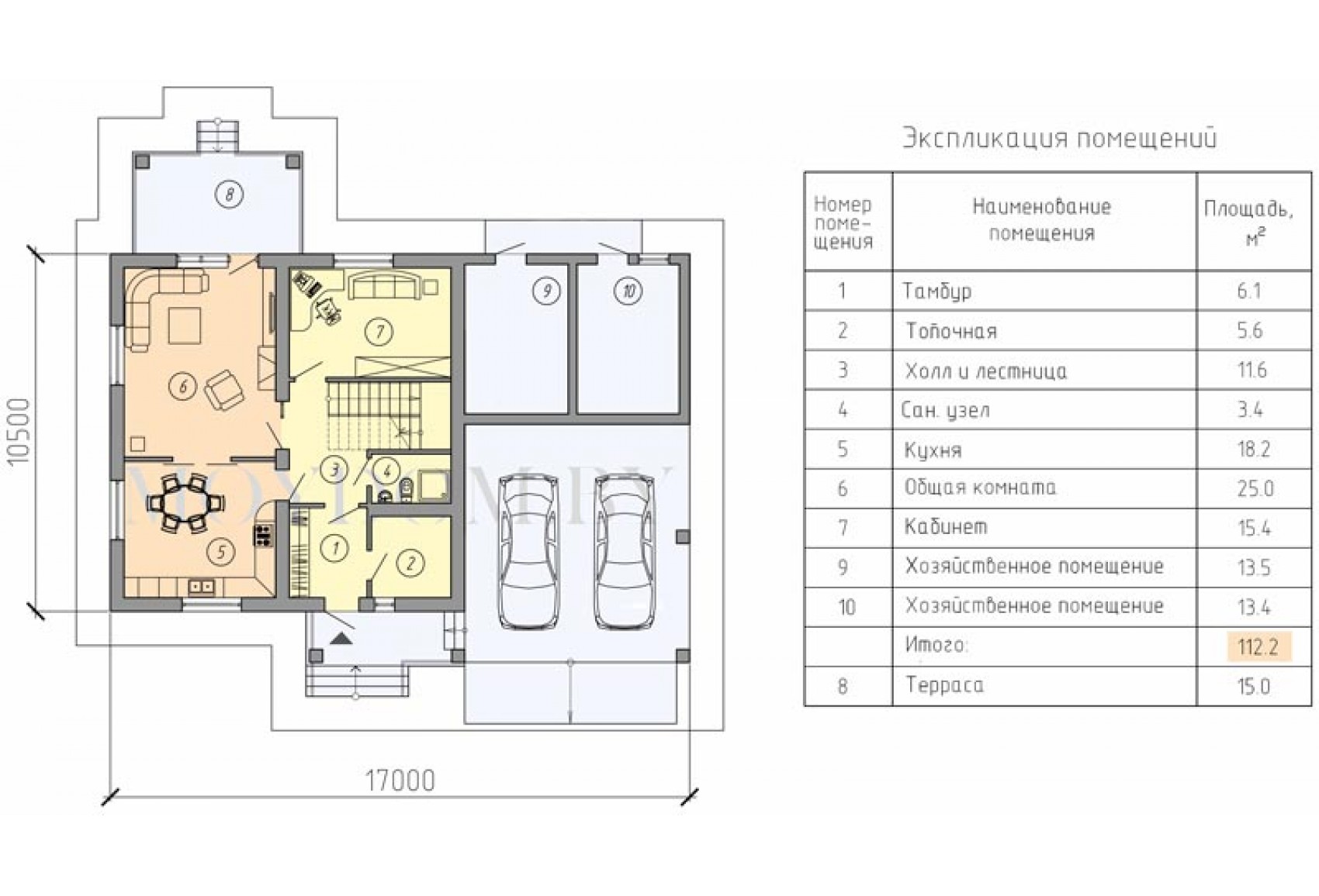
Планировка дома


Зеркальный проект дома
Описание проекта №423
Этот проект дома один из самых лучших и популярных проектов из простых и недорогих двухэтажных домов с навесом на две машины и террасой. Высота потолка 3 метра, окна все по 1,75 м. Все последние современные конструктивные решения в этом проекте. Классическое размещение комнат: на первом этаже слева от входа вместительная кухня-столовая и гостиная, разделенные дверью-купе. У лестницы разместился кабинет, который при желании можно сделать спальней. Небольшой санузел и топочная завершают картину первого этажа. Тихий и спокойный второй этаж вместил в себя 3 просторных спальни, большую ванную комнату и отдельную гардеробную. И дополнительный бонус – навес для 2 машин, крыша которого составляет единое целое с навесом над главным входом в дом. А с обратной стороны навеса расположены два хозяйственных помещения, функционал которых определять вам. Двухэтажный дом очень комфортный и функциональный.
Фото строящегося дома


Теги: Серия проектов домов 423, 4 спальни, 10 на 10, квадратный, от 150 до 200 кв.м., с 4-х скатной кровлей, с террасой, с навесом для машины, классический, с гардеробом, с кабинетом, с хозпомещением.
Характеристики проекта дома
| Кровля | Металлочерипица |
| Жилая площадь, м.кв. | 96,4 |
| Площадь гаража, хоз постройки | 40.0; 26.9 |
| Количество спален | 3, 4 |
| Общая площадь, м.кв. | 198,4 дом + 45,9 навес для машины |
| Количество жилых этажей | 2 |
| Фундамент | Ленточный, Плавающая монолитная ребристая плита |
| Материал стен | Газосиликат, Арболит, Керамзитобетон, Кирпич |
| Толщина стен, мм. | 400 |
| Возможность переделки данного проекта | да |
* - "Коробка дома" под чистовую отделку из расчёта от 250 USD за 1м.кв. по внешнему контуру дома включает в себя работу и материалы (фундамент, стены без штукатурки, перекрытия, кровля, утеплитель для перекрытия). Для России стоимость 1 м.кв. "коробки дома" от 40000 рос. руб. Данные акутальны на сегодняшний день. В стоимость не входят окна, черновая стяжка, чистовая отделка. Ориентировочная стоимость с сетями и отделкой – около 600 - 900 USD за 1 м.кв.









