Проект двухэтажного дома с гаражом и террасой
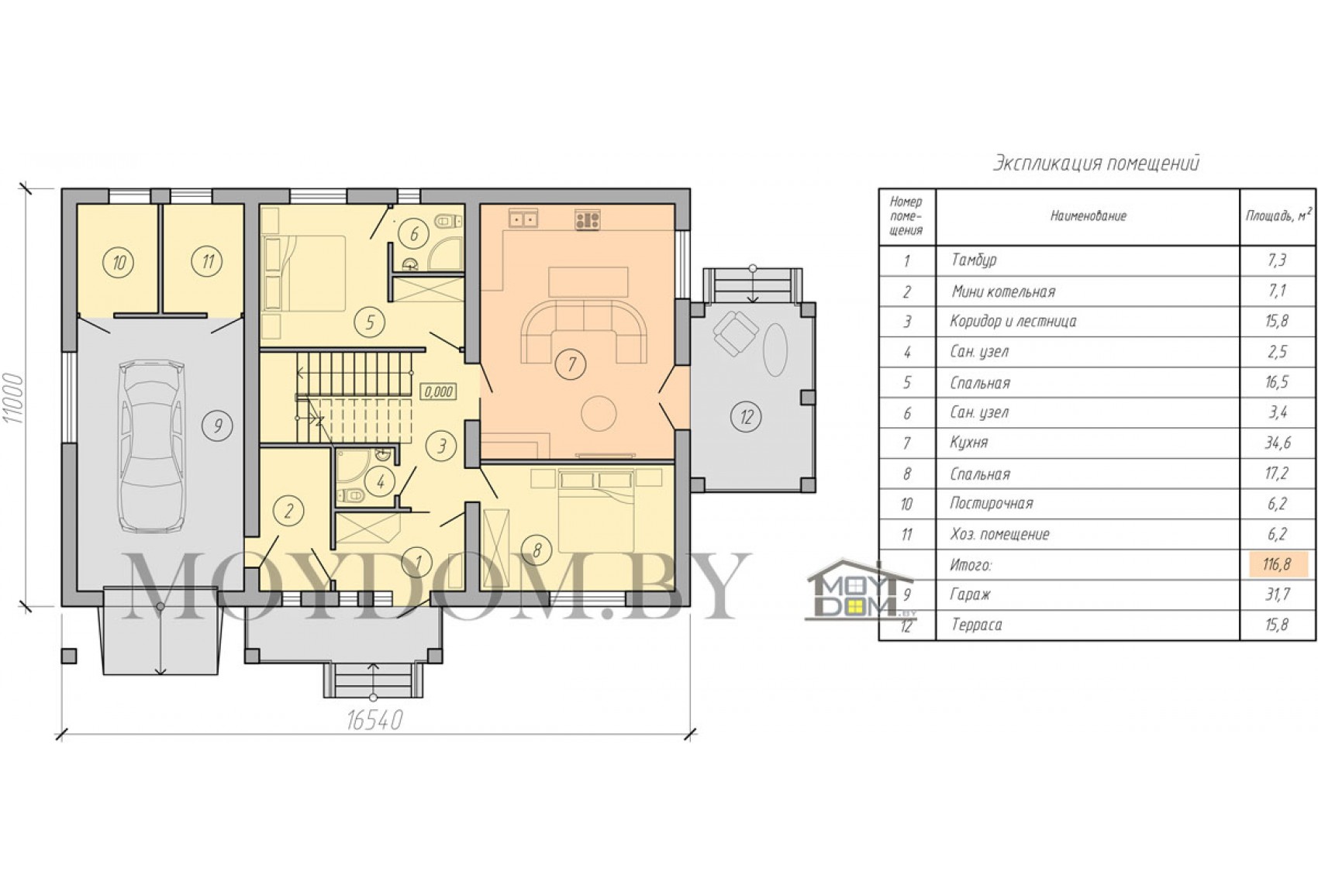
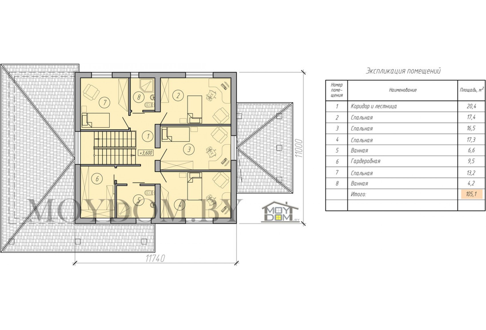
Планировка дома


Зеркальный проект дома
Описание проекта №276
Просторный проект дома с незамысловатой архитектурой предлагает максимальный комфорт для проживания или дачного отдыха. На первом этаже располагается большая и светлая кухня-гостиная, 2 раздельных санузла и крытая летняя терраса с видом на окружающие дом пейзажи. Второй этаж представляет собой демократичное решение с четырьмя спальнями, двумя ванными комнатами и большой гардеробной. Отличный проект за небольшую стоимость.
Фото строительства дома





Теги: 11 на 11, от 150 до 250 кв.м., с 4-х скатной кровлей, с гаражом, с террасой, квадратный, 6 спален, с хозпомещением, с постирочной, большой, с большими окнами.
Характеристики проекта дома
| Кровля | Металлочерипица |
| Площадь гаража, хоз постройки | 44.10 |
| Количество спален | 5, 6 |
| Общая площадь, м.кв. | 221,9 дом + 31,7 гараж |
| Количество жилых этажей | 2 |
| Фундамент | Буронабивные сваи, Ленточный |
| Наличие подвала | Нет |
| Наличие гаража | Есть |
| Материал стен | Газосиликат, Арболит, Кирпич, Керамзитобетон |
| Толщина стен, мм. | 400 |
| Возможность переделки данного проекта | Да |
* - "Коробка дома" под чистовую отделку из расчёта от 250 USD за 1м.кв. по внешнему контуру дома включает в себя работу и материалы (фундамент, стены без штукатурки, перекрытия, кровля, утеплитель для перекрытия). Для России стоимость 1 м.кв. "коробки дома" от 40000 рос. руб. Данные акутальны на сегодняшний день. В стоимость не входят окна, черновая стяжка, чистовая отделка. Ориентировочная стоимость с сетями и отделкой – около 600 - 900 USD за 1 м.кв.

















