Проект блокированного двухэтажного двухквартирного дома
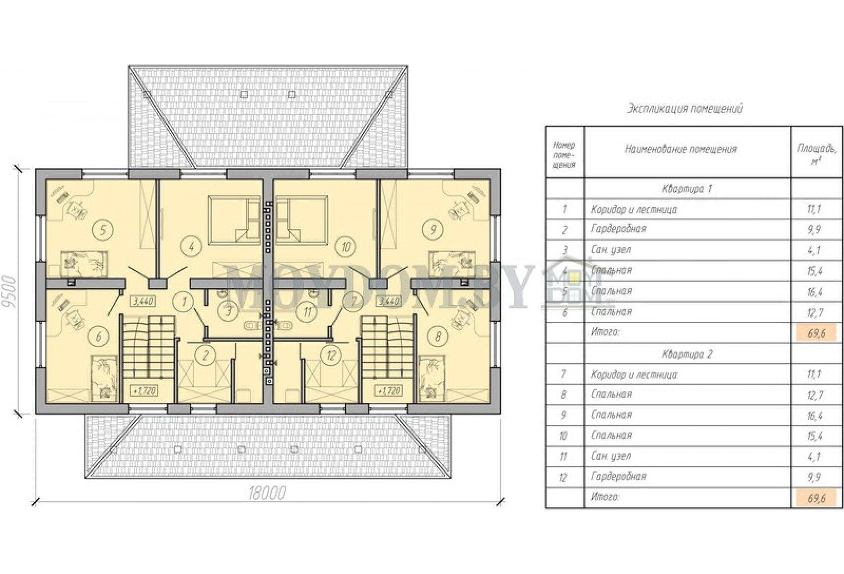
План блокированного жилого дома 9,5 на 18 метров
/95-05-pl1.jpg)
План второго этажа блокированного жилого дома на две семьи
/95-05-pl2.jpg)
Зеркальный проект дома
Описание проекта №95-05
Отличный проект блокированного двухэтажного дома 9 на 18 площадью 280 м.кв. с террасой запроектирован с двумя отдельными входами. Этот проект жилого дома является “братом” проекта на одну квартиру 95-04. Планировка квартир зеркальная что на первом, что на втором этаже. Первый этаж дома занимает гостиная, кухня и гостевая комната, второй - три спальни, гардероб и постирочная. С кухни есть выход на небольшую террасу 12 кв.м. Планировка этого двухэтажного дома классическая, здесь все только самое необходимое для комфортной и удобной жизни. Внешне дом выглядит очень респектабельно и не потеряется среди других застроек. Аналог этого проекта проект 95-04. Этот проект дома подойдёт для небольшого участка и не требует больших денежных вложений. Проект двухэтажного дома подойдет для строительства на участке шириной более 24 м. Площадь каждой квартиры составляет 140 м.кв.
/422f1.jpg)
/422f3.jpg)
Теги: Серия проектов домов 95, 10 на 18, от 80 до 150 кв.м., 4 комнаты, с 4-х скатной кровлей, на две семьи, двухквартирный, с террасой, с гардеробной, недорогой, квадратный
Характеристики проекта дома
| Кровля | Металлочерипица |
| Жилая площадь, м.кв. | 57,3 (для одной квартиры) |
| Количество спален | 4 |
| Общая площадь, м.кв. | 135,2 (для одной квартиры) |
| Фундамент | Ленточный |
| Наличие подвала | Нет |
| Наличие гаража | Нет |
| Материал стен | Газосиликат, Кирпич, Арболит, Керамзитобетон |
| Толщина стен, мм. | 400 |
| Возможность переделки данного проекта | Да |
* - "Коробка дома" под чистовую отделку из расчёта от 250 USD за 1м.кв. по внешнему контуру дома включает в себя работу и материалы (фундамент, стены без штукатурки, перекрытия, кровля, утеплитель для перекрытия). Для России стоимость 1 м.кв. "коробки дома" от 40000 рос. руб. Данные акутальны на сегодняшний день. В стоимость не входят окна, черновая стяжка, чистовая отделка. Ориентировочная стоимость с сетями и отделкой – около 600 - 900 USD за 1 м.кв.





/95-05-pl1-z.jpg)
/95-05-pl2-z.jpg)





