Проект двухэтажного блокированного дома на две семьи
Планировка дома


Зеркальный проект дома
Описание проекта №47
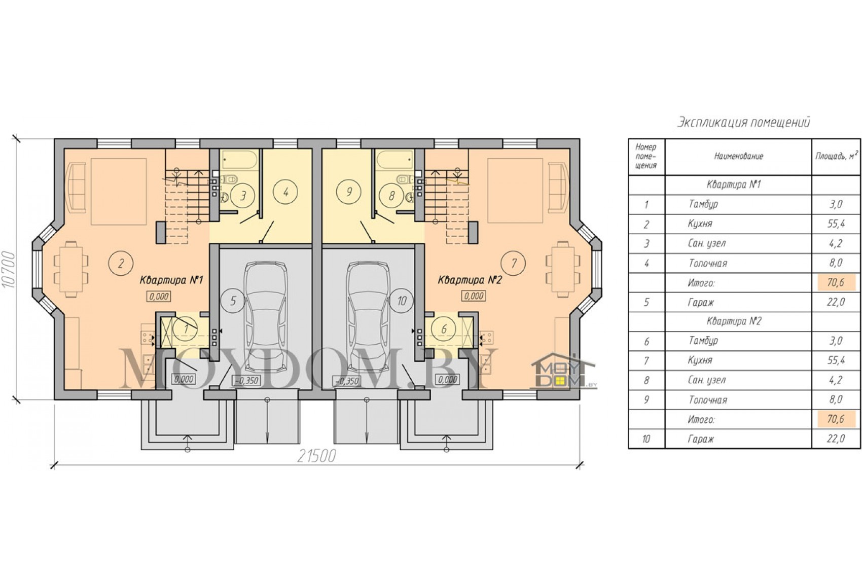
Этот проект двухэтажного блокированного дома для одновременного проживания двух семей. В каждой симметричной половине дома есть все необходимое для полноценного проживания семьи. Санузел на первом этаже, ванная комната на втором. На втором этаже есть большая комната 24,6 кв.м., которую вы можете использовать по своему усмотрению. В каждой квартире есть гараж на одну машину.
Характеристики проекта дома
| Кровля | Металлочерипица |
| Жилая площадь, м.кв. | |
| Площадь гаража, хоз постройки | 22.0 х 2 |
| Количество спален | 2 |
| Общая площадь, м.кв. | 166,2 х 2 квартиры + 22,0 х 2 гаража |
| Количество жилых этажей | 2 |
| Фундамент | Ленточный, Буронабивные сваи |
| Наличие подвала | Нет |
| Наличие гаража | Есть |
| Материал стен | Газосиликат, Керамзитобетон, Арболит, Кирпич |
| Толщина стен, мм. | 400 |
| Возможность переделки данного проекта | Да |
* - "Коробка дома" под чистовую отделку из расчёта от 250 USD за 1м.кв. по внешнему контуру дома включает в себя работу и материалы (фундамент, стены без штукатурки, перекрытия, кровля, утеплитель для перекрытия). Для России стоимость 1 м.кв. "коробки дома" от 40000 рос. руб. Данные актуальны на сегодняшний день. В стоимость не входят окна, черновая стяжка, чистовая отделка. Ориентировочная стоимость с сетями и отделкой – около 600 - 900 USD за 1 м.кв.





