Проект одноэтажного дома 100 кв.м. 653
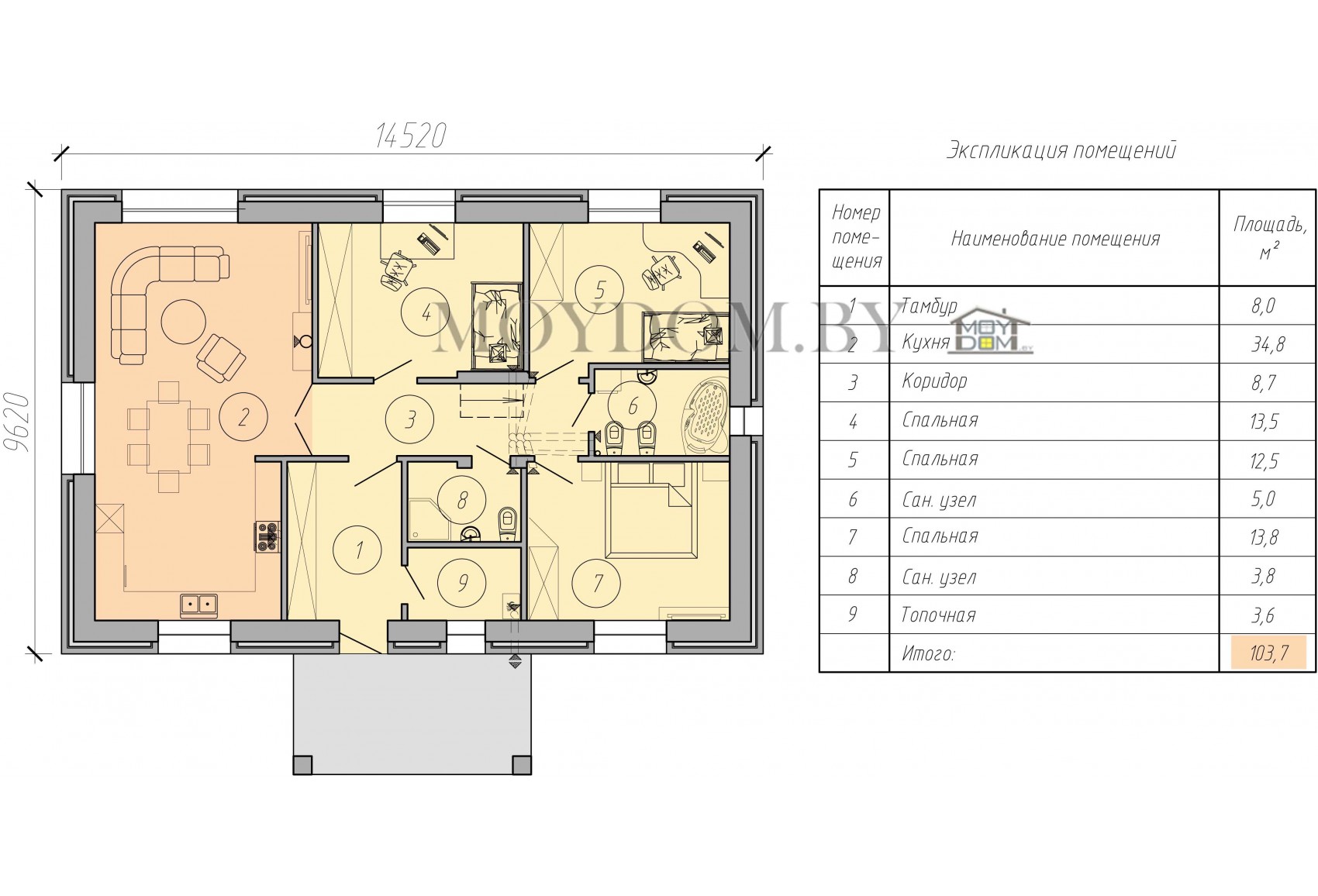
Планировка дома


Зеркальный проект дома
Описание проекта №653
Отличный вариант проект дома до 100 кв.м. с тремя спальнями. Дом, хоть и небольшой по площади, но очень грамотно спроектирован внутри. В доме есть гостиная, три спальни, большая кухня, гардеробная, топочная и санузел. Этот дом скорее подходит для летнего проживания, хотя его также можно использовать и круглогодично. Ведь в доме предусмотрено все необходимое для комфортной жизни. Стоимость строительства дома невысокая, как и дальнейшее его обслуживание. При желании мини-котельную можно увеличить до 15 м.куб, уменьшив гостевой с/у, чтобы соблюсти требования для РФ.
Фото строящегося дома

Характеристики проекта дома
| Кровля | Металлочерипица |
| Жилая площадь, м.кв. | 37,0 |
| Количество спален | 3 |
| Общая площадь, м.кв. | 103,7 |
| Количество жилых этажей | 1 |
| Тип кровли | 4 - скатная |
| Фундамент | Монолитный железобетонный |
| Наличие подвала | Нет |
| Наличие гаража | Нет |
| Материал стен | Кирпич |
| Толщина стен, мм. | |
| Утепление стен, мм. | 100 |
| Наружная отделка | Декоративно-защитная штукатурка |
| Возможность переделки данного проекта | Да |
* - "Коробка дома" под чистовую отделку из расчёта от 250 USD за 1м.кв. по внешнему контуру дома включает в себя работу и материалы (фундамент, стены без штукатурки, перекрытия, кровля, утеплитель для перекрытия). Для России стоимость 1 м.кв. "коробки дома" от 40000 рос. руб. Данные актуальны на сегодняшний день. В стоимость не входят окна, черновая стяжка, чистовая отделка. Ориентировочная стоимость с сетями и отделкой – около 600 - 900 USD за 1 м.кв.









