Проект одноэтажного дома с мансардой и террасой 68
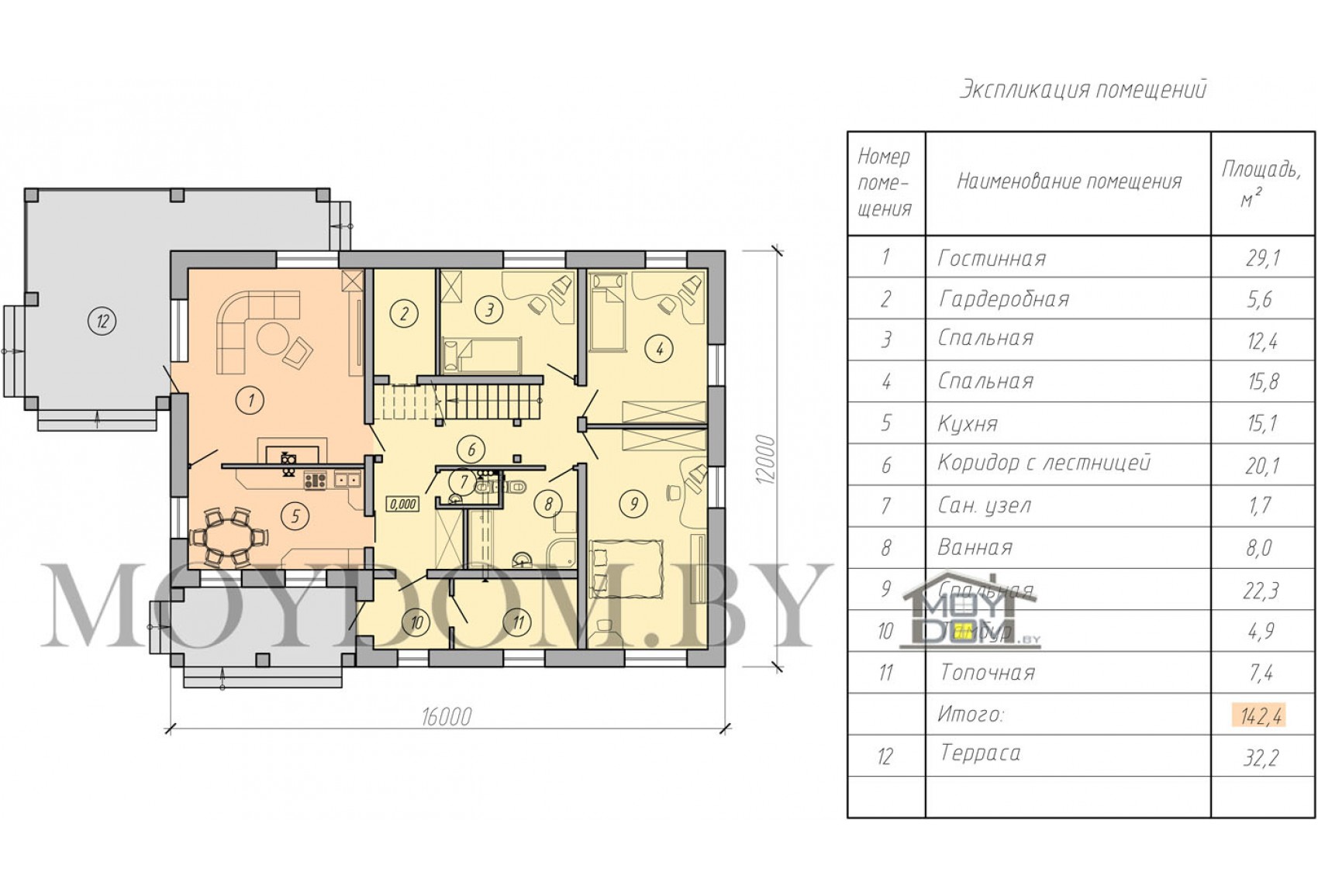
Планировка дома

Зеркальный проект дома
Описание проекта №68
Этот одноэтажный дом с возможностью обустройства мансарды, несмотря на свои размеры, выглядит по-настоящему впечатляюще. Он очень грамотно спроектирован, благодаря чему на относительно небольшой площади сосредоточились все необходимые помещения: гостиная, три спальни, большая кухня, гардеробная, топочная и уютная терраса. Этот дом подходит как для летнего проживания, так и для круглогодичного. На переспективный мансардный этаж ведет внутренняя лестница. В кровле можно легко вставить мансардные окна и получить комфортную для проживания площадь в 60-80 м.кв. Кстати, при желании кухню можно объединить с гостиной.
Благодаря отделке из декоративного камня этот дом идеально впишется в загородный ландшафт.
Теги: 12 на 16, от 80 до 150 кв.м., от 150 до 200 кв.м., 3 спальни, 4 комнаты, с 4-х скатной кровлей, с гардеробной, с террасой, с мансардой, небольшой.
Характеристики проекта дома
| Кровля | Металлочерипица |
| Жилая площадь, м.кв. | 79,6 |
| Количество спален | 3 |
| Общая площадь, м.кв. | 142 |
| Количество жилых этажей | 1, 1 + мансарда |
| Фундамент | Буронабивные сваи |
| Наличие подвала | Нет |
| Наличие гаража | Нет |
| Материал стен | Газосиликат, Арболит, Кирпич, Керамзитобетон |
| Толщина стен, мм. | 400 |
| Возможность переделки данного проекта | Да |
* - "Коробка дома" под чистовую отделку из расчёта от 250 USD за 1м.кв. по внешнему контуру дома включает в себя работу и материалы (фундамент, стены без штукатурки, перекрытия, кровля, утеплитель для перекрытия). Для России стоимость 1 м.кв. "коробки дома" от 40000 рос. руб. Данные акутальны на сегодняшний день. В стоимость не входят окна, черновая стяжка, чистовая отделка. Ориентировочная стоимость с сетями и отделкой – около 600 - 900 USD за 1 м.кв.












