Проект одноэтажного дома с подвалом и эркером
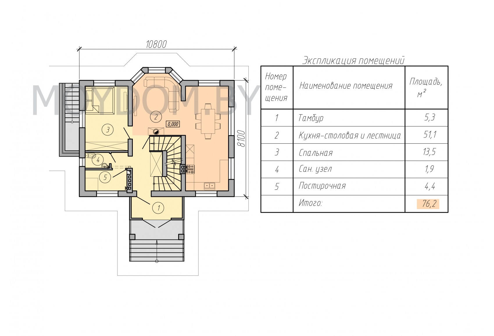
Планировка дома




Зеркальный проект дома
Описание проекта №299
Этот проект одноэтажного дома из каталога готовых проектов с подвалом выгодно отличается от других тем, что здесь можно оборудовать жилую мансарду. Общая площадь дома позволяет без труда разместиться в нем семье с тремя детьми – в доме можно устроить четыре спальни на мансардном этаже и одну гостевую на первом. Также удобство и комфорт обеспечивают постирочная, гардеробная и другие вспомогательные помещения. В этом проекте все продумано, и дом идеально приспособлен для комфортной спокойной жизни. Необычный дизайн сразу выделит этот дом из ряда однотипных, ведь сочетание контрастных цветов (венге и белый) и столь же непохожих друг на друга фактур (дерево, штукатурка, камень) делает его заметным и неповторимым.
Теги: 8 на 10, от 80 до 150 кв.м., с подвалом, 5 спален, с мансардой, с балконом, с эркером, с двускатной кровлей, деревянный, из бруса, с хозпомещением, с постирочной
Характеристики проекта дома
| Кровля | Металлочерипица |
| Жилая площадь, м.кв. | 110,7 |
| Количество спален | 4, 5 |
| Общая площадь, м.кв. | 145,3 |
| Количество жилых этажей | 1 + мансарда |
| Фундамент | Буронабивные сваи, Ленточный |
| Наличие подвала | Есть |
| Наличие гаража | Нет |
| Материал стен | Газосиликат, Керамзитобетон, Кирпич, Арболит |
| Толщина стен, мм. | 400, 500 |
| Возможность переделки данного проекта | Да |
* - "Коробка дома" под чистовую отделку из расчёта от 250 USD за 1м.кв. по внешнему контуру дома включает в себя работу и материалы (фундамент, стены без штукатурки, перекрытия, кровля, утеплитель для перекрытия). Для России стоимость 1 м.кв. "коробки дома" от 40000 рос. руб. Данные акутальны на сегодняшний день. В стоимость не входят окна, черновая стяжка, чистовая отделка. Ориентировочная стоимость с сетями и отделкой – около 600 - 900 USD за 1 м.кв.


















