Проект одноэтажного дома в стиле хайтек со вторым светом, навесом и баней
Планировка дома
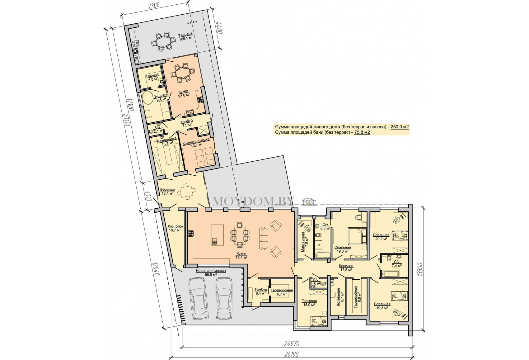
Описание проекта
Наша архитектурная студия рада предоставить вашему вниманию уникальный проект современного дома. Проект одноэтажного дома 909 со вторым светом, навесом и баней. Неповторимый дизайн и удачная планировка — всё это прекрасно сочетается в проекте 909, выполненном в стиле хай-тек.
Площадь коттеджа составляет 250 кв.м. Такое решение позволяет вместить всё необходимое для комфортного проживания большой семьи. Необычный дизайн дома приведёт в восторг ваших гостей и прохожих. Ваш дом в стиле хай-тек будет привлекать внимание и вызывать интерес. Остекленные фасады правильной геометрической формы прекрасно впишутся в любой ландшафтный дизайн. Ровные горизонтальные и вертикальные линии образуют углы 90 градусов — стильное и современное решение. Проект одноэтажного дома с навесом на две машины заставляет забыть о проблемах с парковкой. Вам не нужно загонять машину на газон или оборудовать дополнительное машиноместо, думать, куда поставить машины гостей. Всё уже учтено при разработке дома.
Дом с плоской крышей покрыт кровлей с направляемой гидроизоляцией. Толщина стен составляет 400мм, что позволяет построить дом из любого материала: кирпича, газоблоков, арболита или керамзитобетона. Дома, построенные по нашим проектам коттеджей, служат долгие годы без нареканий и проблем в эксплуатации. В зависимости от расположения участка, этот проект дома можно выполнить в зеркальном отражении.
Типовой проект одноэтажного дома с четырьмя спальнями подойдет как большой семье, так и людям, у которых всегда много гостей. Расположение спален и санузлов позволит хозяевам и их гостям не тревожить друг друга во время отдыха. Высота потолков составляет 3м. Комнаты просторные, правильной формы. В них свободно разместятся необходимые для жизни предметы интерьера. Одну из комнат можно сделать под кабинет или спортивный зал, а для любителей петь — даже оборудовать под зону караоке. Большие окна позволяют проникать дневному свету без помех.
Хочется уделить внимание количеству дополнительных помещений. Архитектор-проектировщик с должным вниманием отнесся к проблеме поддержания порядка. Теперь все вещи будут на своих местах и не будут перегружать интерьер. План дома включает в себя: четыре просторные спальни, две гардеробные, два санузла, хозблок и котельную. Изюминкой станет мастерская, где хозяин дома может хранить свой инструмент. Площадь котельной позволяет поставить стиральную и сушильную машины, организовать небольшую прачечную.
Местом силы в вашем доме станет просторная кухня-гостиная площадью 75кв.м. Только подумайте, двухсветное пространство и высота потолков достигает 5м. За счёт этого ощущается свобода и простор, даже кажется, что воздуха больше. Здесь легко поместится большой кухонный гарнитур, со всем необходимым для удобства хозяйки. Рядом встанет обеденный стол для всей семьи и гостей. Еще останется достаточно места для мягкого дивана и подходящих к нему кресел. На них можно будет полежать с любимой книгой или провести время с семьей, играя в настольные игры. Для любителей фауны нотку уюта могут внести любимые комнатные растения. А если поставить маленький водопад, то релакс гарантирован. Коттедж входит в проекты домов со вторым светом, поэтому в гостиной будет светло.
Прямо из кухни вы попадаете на крытую веранду. На ней так приятно будет выпить утренний кофе и насладиться прекрасными видами на ваш сад. Проекты домов с террасой разработаны так, чтобы ваши автомобили не загораживали вид на приусадебный участок. А это значит, что вы можете воплотить любые идеи в ландшафтном дизайне.
Многие современные дома включают в себя баню. Попасть в нее можно как с веранды, террасы, так и со стороны палисадника. Зимой, чтобы остыть, можно сразу прыгнуть в сугроб. Отдельная просторная раздевалка с санузлом позволит не мешать друг другу. Проекты домов с баней включают в себя просторную кухню, площадью 23,6кв.м. В душевой комнате можно ополоснуться холодной водой. Сердце нашей баньки — парная. Ее площадь составляет 5,8кв.м. Такого размера достаточно для хозяев и гостей. Легко уместить печь и полки, на которых лежат. В дом с баней входит комната отдыха. Можно поставить удобные лежаки, повесить телевизор или сделать зону для Spa-процедур.
Наша архитектурная мастерская разработает любые проекты на ваш вкус и бюджет. Мы гарантируем индивидуальный подход и высокое качество обслуживания. У нас большой опыт воплощения в жизнь всех идей клиента. Специалисты мастерской регулярно повышают квалификацию. Архитектор-проектировщик решит любой вопрос, даст советы и поможет выбрать планировку дома, а наши строители построят ваш дом мечты. Наши цены ниже, чем у конкурентов за то же качество и удивят вас в лучшую сторону.
Доверьтесь профессионалам, и ваши мечты об идеальном доме сбудутся.


Our architectural studio is pleased to present to your attention a unique project of a modern house. The project of a one-story house 909 with a second light canopy and a bathhouse. The unique design and successful layout - all this is perfectly combined in the high-tech project 909.
The area of the cottage is 250 sq.m. This solution allows you to accommodate everything you need for a comfortable stay of a large family. The unusual design of the house will delight your guests and passers-by. Your high-tech home will attract attention and arouse interest. Glazed facades of the correct geometric shape will perfectly fit into any landscape design. Smooth horizontal and vertical lines form 90-degree angles - a stylish and modern solution. The project of a one-story house with a carport for two cars makes you forget about parking problems. You do not need to drive the car onto the lawn or equip an additional parking space, think about where to park the guests' cars. Everything has already been taken into account when designing the house.
House with a flat roof, covered with a roof with guided waterproofing. The thickness of the walls is 400 mm, which allows you to build a house from any material: brick, gas blocks, wood concrete or expanded clay concrete. Houses built according to our projects of cottages serve for many years without complaints and problems in operation. Depending on the location of the site, this house project can be done in a mirror image.
A typical project of a one-story house with four bedrooms will suit a large family, as well as people who always have a lot of guests. The location of the bedrooms and bathrooms will allow the owners and their guests not to disturb each other during the holidays. The ceiling height is 3 m. The rooms are spacious and regular in shape. They will freely accommodate the necessary interior items for life. One of the rooms can be turned into an office or a gym, and for those who like to sing, they can even be equipped as a karaoke area. Large windows allow daylight to enter without interference.
I would like to pay attention to the number of additional rooms. The architect-designer paid due attention to the problem of maintaining order. Now all things will be in place and will not overload the interior. The plan of the house includes: four spacious bedrooms, two dressing rooms, two bathrooms, a utility block and a boiler room. The highlight will be a workshop where the owner of the house can store his tool. The area of the boiler room allows you to put a washing machine and dryer, organize a small laundry room.
The place of power in your home will be a spacious kitchen-living room with an area of 75 sq.m. Just think, the double-height space and the height of the ceilings reaches 5 m. Due to this, freedom and spaciousness are felt, it even seems that there is more air. Here you can easily fit a large kitchen set, with everything you need for the convenience of the hostess. Nearby there will be a dining table for the whole family and guests. There will still be enough space for a soft sofa and armchairs suitable for it. On them you can lie down with your favorite book or spend time with your family playing board games. For lovers of fauna, your favorite indoor plants can add a touch of comfort. And if you put a small waterfall, then relaxation is guaranteed. The cottage is included in the projects of houses with a second light, so there will be light in the living room.
Directly from the kitchen you get to the covered veranda. It will be so nice to drink your morning coffee and enjoy the beautiful views of your garden. Terrace house designs are designed so that your cars do not obstruct the view of the infield. And this means that you can embody any ideas in landscape design.
Many modern homes include a bath. You can get into it both from the veranda, terrace, and from the side of the front garden. In winter, to cool down, you can immediately jump into a snowdrift. A separate spacious dressing room with a bathroom will allow you not to interfere with each other. Projects of houses with a bath include a spacious kitchen with an area of 23.6 sq.m. In the shower room you can rinse with cold water. The heart of our sauna is the steam room. Its area is 5.8 sq.m. This size is enough for hosts and guests. It is easy to fit the oven and the shelves on which they lie. The house with a bath includes a rest room. You can put comfortable sunbeds, hang a TV or make an area for Spa treatments.
Our architectural workshop will develop any projects to your taste and budget. We guarantee an individual approach and high quality service. We have extensive experience in implementing all the ideas of the client. Workshop specialists regularly improve their skills. The architect-designer will solve any issue, give advice and help you choose the layout of the house, and our builders will build your dream home. Our prices are lower than those of competitors for the same quality and will surprise you for the better.
Trust professionals and your dreams of an ideal home will come true.
Фото строительства




Характеристики проекта дома
| Кровля | Плоская кровля с наплавляемой гидроизоляцией |
| Количество спален | 4, 5 |
| Общая площадь, м.кв. | 250 дом + 55,9 навес для машины |
| Количество жилых этажей | 1 |
| Высота 1-го этажа, м. | 3.0, 5.0 |
| Фундамент | Плавающая монолитная ребристая плита |
| Наличие подвала | Нет |
| Наличие гаража | Есть |
| Материал стен | Блоки, Газосиликат, Арболит, Кирпич, Керамзитобетон |
| Толщина стен, мм. | 400 |
| Наружная отделка | Навесной фасад |
| Возможность переделки данного проекта | Да |
* - "Коробка дома" под чистовую отделку из расчёта от 250 USD за 1м.кв. по внешнему контуру дома включает в себя работу и материалы (фундамент, стены без штукатурки, перекрытия, кровля, утеплитель для перекрытия). Для России стоимость 1 м.кв. "коробки дома" от 40000 рос. руб. Данные актуальны на сегодняшний день. В стоимость не входят окна, черновая стяжка, чистовая отделка. Ориентировочная стоимость с сетями и отделкой – около 600 - 900 USD за 1 м.кв.





