Проект красивого двухэтажного дома с подвалом и мансардой
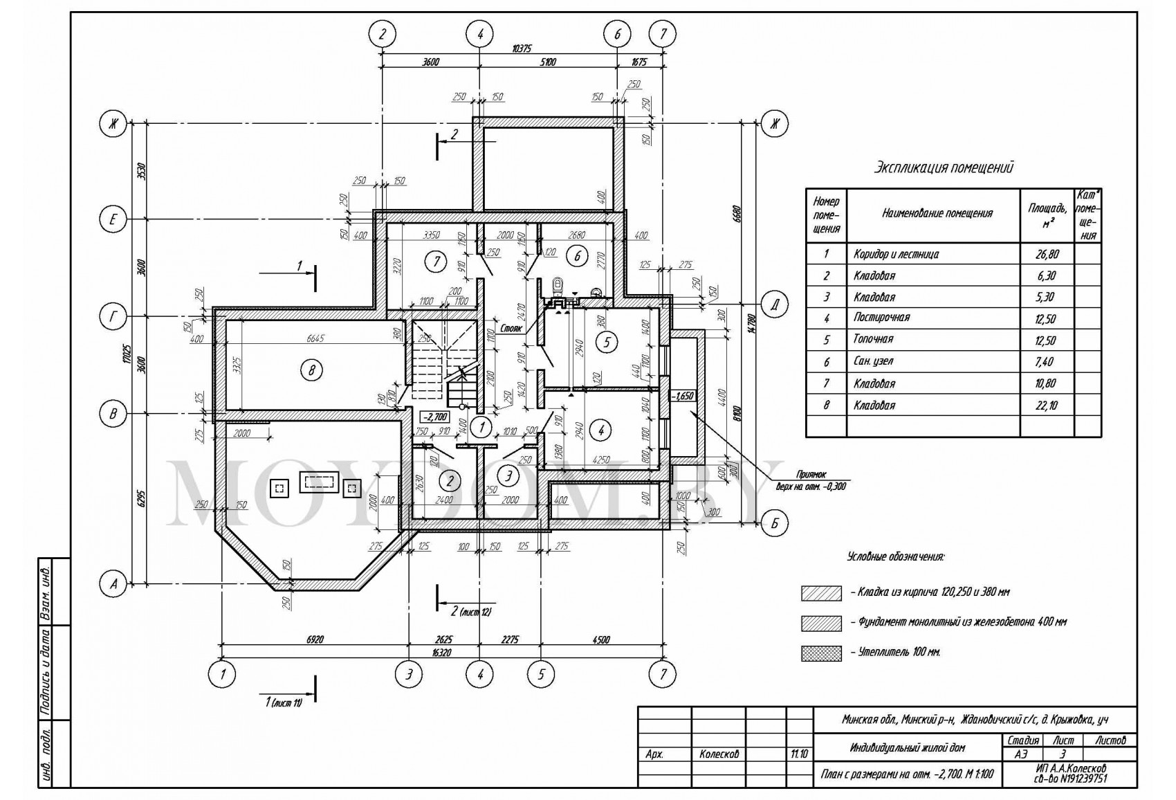
Планировка дома



Зеркальный проект дома
Описание проекта №90
Этот проект двухэтажного дома с мансардой, подвалом и вторым светом на 300 м.кв просто шикарен. Дом с большим подвалом подойдет большой динамичной семье, как для постоянного проживания, так и для летнего. Дом просторный, с большими окнами и продуманной планировкой. Внешне дом выглядит очень роскошно и гармонично вписывается в окружающий загородный ландшафт. В доме есть подвал, в котором расположены технические помещения, а на первом этаже кроме просторной гостиной есть зимний сад –просто мечта хозяйки! На втором этаже кроме спальных разместилась ещё и бильярдная со своим балконом.
This project of a house with an attic, a basement and a second light of 300 sq.m. is simply gorgeous. A house with a large basement is suitable for a large dynamic family, both for permanent residence and for summer. The house is spacious, with large windows and a thoughtful layout. This project is suitable for families with children. Externally, the house looks very luxurious and harmoniously fits into the surrounding countryside landscape. The house has a basement with technical rooms, and on the ground floor, in addition to a spacious living room, there is also a winter garden - just a hostess' dream! On the second floor, in addition to the bedrooms, there is also a billiard room with its own balcony.
Фото строящегося дома


Теги: 20 на 20, от 250 кв.м., 3 спальни, с двускатной кровлей, австрийский стиль, с зимним садом, с кладовой, с подвалом, с балконом, с бильярдной, с кабинетом, с зимним садом, с гардеробной, с постирочной.
Характеристики проекта дома
| Кровля | Металлочерипица |
| Жилая площадь, м.кв. | 140.1 |
| Количество спален | 3, 4 |
| Общая площадь, м.кв. | 297.6 |
| Количество жилых этажей | 2 |
| Фундамент | Блоки ФБС |
| Наличие подвала | Есть |
| Наличие гаража | Нет |
| Материал стен | Газосиликат, Кирпич, Керамзитобетон, Арболит |
| Толщина стен, мм. | 400 |
| Возможность переделки данного проекта | Да |
* - "Коробка дома" под чистовую отделку из расчёта от 250 USD за 1м.кв. по внешнему контуру дома включает в себя работу и материалы (фундамент, стены без штукатурки, перекрытия, кровля, утеплитель для перекрытия). Для России стоимость 1 м.кв. "коробки дома" от 40000 рос. руб. Данные акутальны на сегодняшний день. В стоимость не входят окна, черновая стяжка, чистовая отделка. Ориентировочная стоимость с сетями и отделкой – около 600 - 900 USD за 1 м.кв.











