Проект двухэтажного квадратного дома
План первого этажа двухэтажного дома с террасой

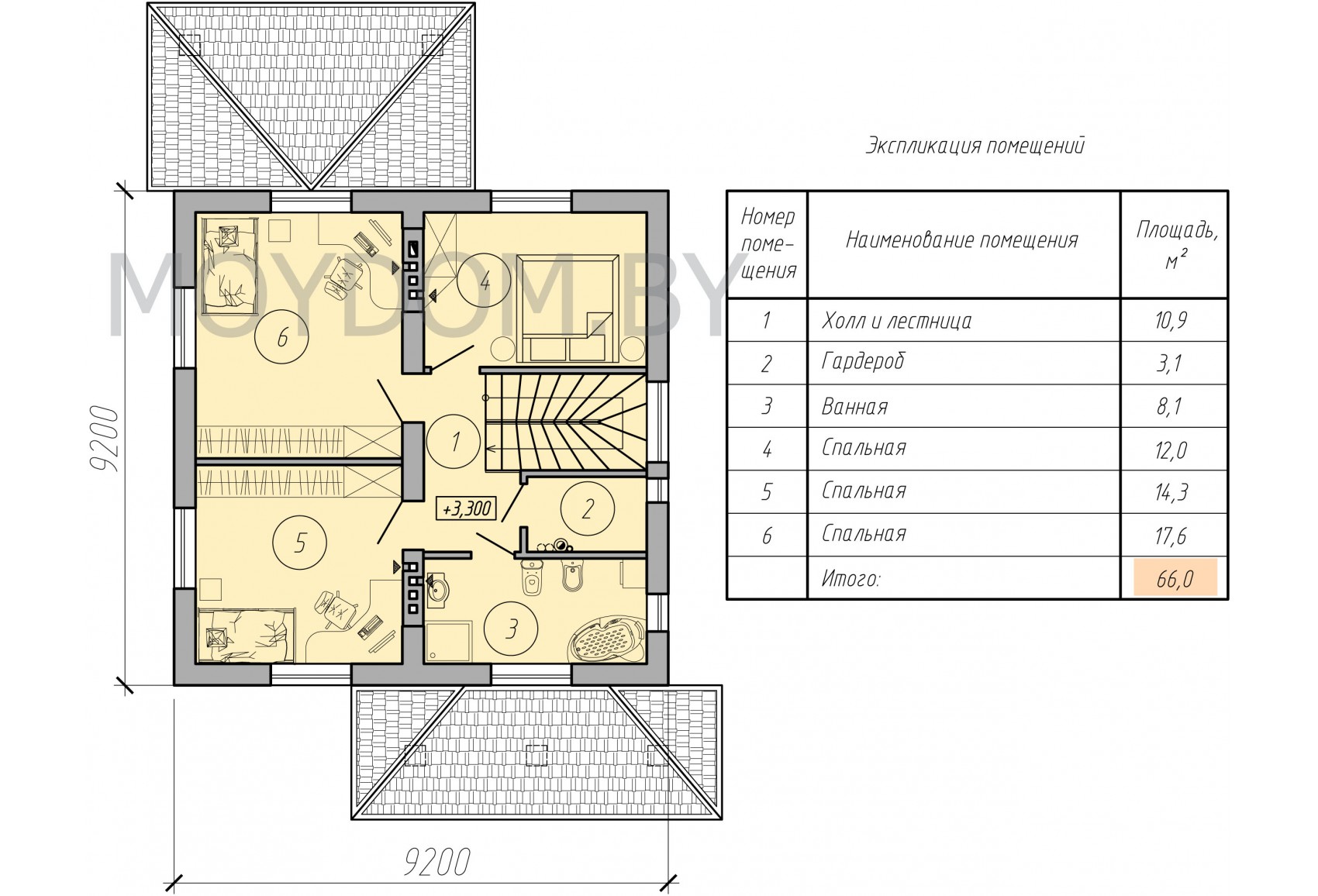
План второго этажа двухэтажного дома

Зеркальный проект дома
Описание проекта №95-07
Проект двухэтажного дома 9.2 на 9.2 площадью 130 м.кв. с террасой выполнен в классическом стиле. В этом проекте дома есть все необходимые комнаты и помещения для комфортной жизни, но в тоже время в этом проекте загородного дома нет ничего лишнего. Внешне дом выглядит очень респектабельно и не потеряется среди других застроек. Проект 95-07 - это уменьшенный проект легендарного проекта 95 и он ещё очень похож на проект 95-04, только несущая стена расположена перпендикулярно. На первом этаже кухня, гостиная с выходом на террасу, кабинет. На втором - спальная зона. Этот проект дома подойдёт для небольшого участка и не требует больших денежных вложений. Проект двухэтажного дома подойдет для строительства на участке шириной более 15.2 метров.

Характеристики проекта дома
| Кровля | Металлочерипица |
| Жилая площадь, м.кв. | 96,4 |
| Количество спален | 3, 4 |
| Общая площадь, м.кв. | 132 |
| Количество жилых этажей | 2 |
| Фундамент | МЗФЛ + плита |
| Наличие подвала | Нет |
| Наличие гаража | Нет |
| Материал стен | Кирпич, Газосиликат, Керамзитобетон, Арболит |
| Толщина стен, мм. | 400 |
| Возможность переделки данного проекта | Да |
* - "Коробка дома" под чистовую отделку из расчёта от 250 USD за 1м.кв. по внешнему контуру дома включает в себя работу и материалы (фундамент, стены без штукатурки, перекрытия, кровля, утеплитель для перекрытия). Для России стоимость 1 м.кв. "коробки дома" от 40000 рос. руб. Данные актуальны на сегодняшний день. В стоимость не входят окна, черновая стяжка, чистовая отделка. Ориентировочная стоимость с сетями и отделкой – около 600 - 900 USD за 1 м.кв.




