Проект одноэтажной бани с тренажёрным залом плоской крышей
План дома-бани

Зеркальный проект дома

Проект дома-бани 12 на 18 с плоской крышей – современный стиль и максимальный комфорт
Если вы ищете отличный вариант загородного отдыха, то обратите своё внимание на проект дома-бани 12 на 18 с плоской крышей. Это не просто место для парных процедур, а целый многофункциональный комплекс, в котором можно проводить уикенды, встречать гостей или даже жить длительное время. Баня в современном стиле сочетает в себе эстетику минимализма, продуманную планировку и максимальный комфорт.
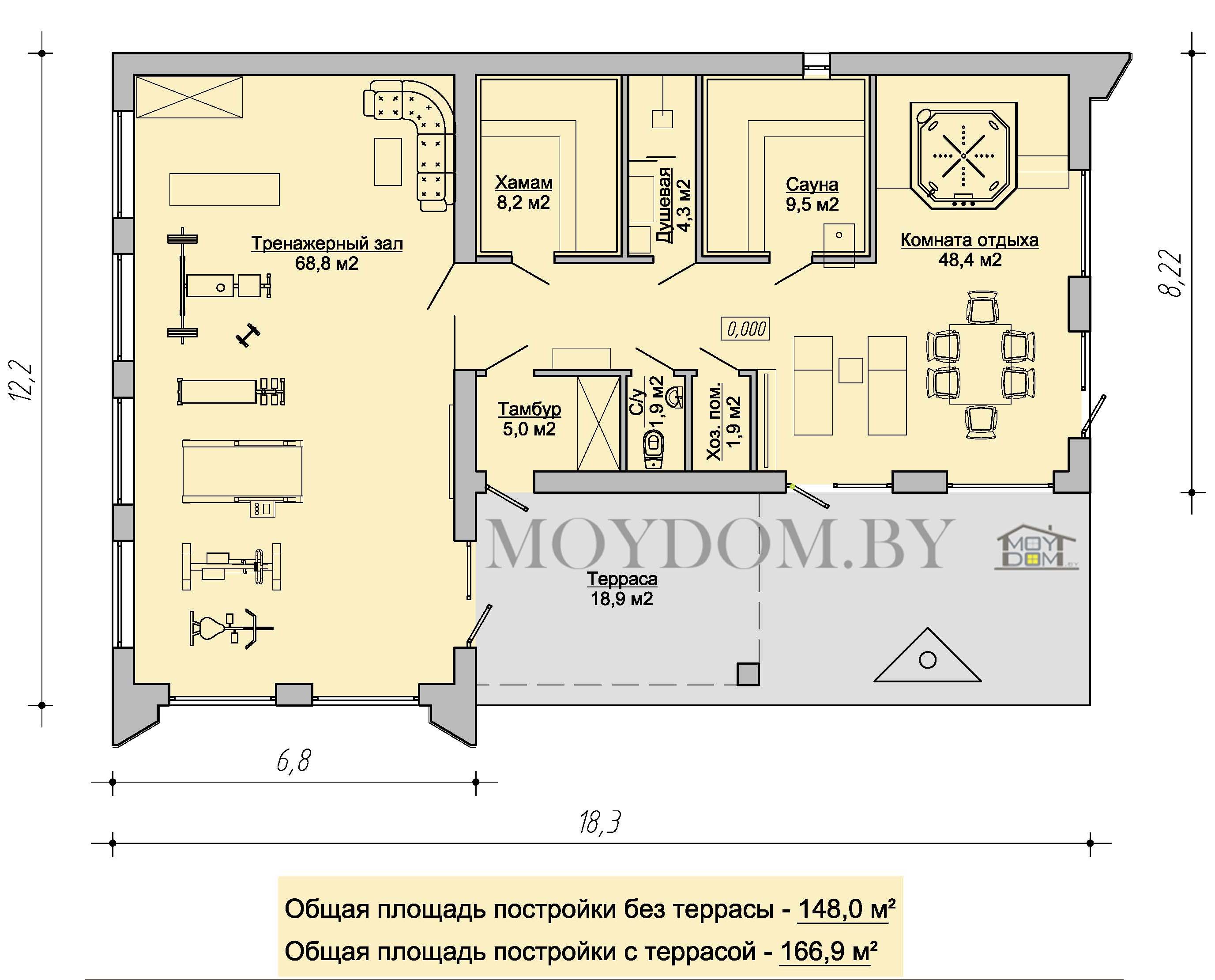
В проекте предусмотрено всё для полноценного отдыха: сауна с хамамом, просторная комната отдыха с джакузи, телевизором и печью-камином, тренажёрный зал, который можно переоборудовать под жилые комнаты или даже оборудовать как уютный кинозал. Такое решение делает проект универсальным и удобным для самых разных сценариев использования.
Планировка и возможности проекта
Общая площадь постройки — до 150 м². Большая панорамная гостиная с видом на участок создаёт ощущение простора и позволяет наслаждаться природой в любое время года.
Толщина стен 300 мм обеспечивает отличную тепло- и шумоизоляцию, а значит, внутри всегда будет уютно и тихо. Зона сауны и хамама расположена отдельно от спален и комнат отдыха, что сохраняет приватность и комфорт всех жителей и гостей.
Просторная терраса — ещё один плюс этого проекта. Она частично накрыта, что позволяет укрыться от солнца или дождя, а на открытой части можно загорать. Здесь найдётся место и для летней мебели, и для барбекю, а отличный вид на ухоженный участок сделает отдых особенно приятным.
Функциональные решения и дизайн
Этот проект бани в современном стиле сделан с акцентом на большие окна, прямые линии и лаконичные формы. Баня с панорамными окнами позволяет наполнить помещения светом, а вечером — любоваться видом на закат или ночное небо.
Готовый строительный проект включает всё необходимое для реализации: архитектурные чертежи, схемы коммуникаций, конструктивные решения, узлы, спецификации... При желании его можно адаптировать под ваши потребности — например, сделать перепланировку, или добавить дополнительные технические помещения. К слову, котёл находится в данном случае в доме .который стоит по-соседству с баней и все коммуникации заведены в хоз. помещение. А если нужно сделать отдельную мини-котельную, то придётся однозначно вставить её около тренажёрного зала, это не проблема.
Многофункциональный тренажёрный зал площадью около 70 м² можно использовать по-разному:
-
оборудовать полноценный фитнес-уголок;
-
сделать гостевую спальню разбив зал на одну или несколько частей;
-
организовать кинозал с большим экраном;
-
превратить в детскую игровую комнату.
-
оргвнизовать банкетный зал
Джакузи в комнате отдыха с телевизором и камином — это особая изюминка проекта. После парных процедур можно расслабиться в тёплой воде, смотреть любимые фильмы или просто наслаждаться треском дров из печи-камина.
Преимущества проекта дома-бани
-
Современный дизайн.
-
Панорамное остекление для максимального естественного света.
-
Наличие сауны и хамама в одном здании.
-
Просторный тренажёрный зал с возможностью перепланировки.
-
Терраса с открытой и крытой частью.
-
Толщина стен 300 мм — надёжная защита от холода и шума.
-
Универсальность — подходит и для кратковременного отдыха, и для длительного проживания.
Заключение
Проект дома-бани 12 на 18 с плоской крышей — это сочетание уюта, эстетики и функциональности. Здесь найдётся место и для шумных компаний, и для тихого уединения, и для активного отдыха. Баня в современном стиле с панорамными окнами, сауной, хамамом, тренажёрным залом и джакузи станет вашим личным центром релаксации. Такой готовый строительный проект можно реализовать быстро, с минимальными изменениями или полной адаптацией под ваши индивидуальные пожелания.
Характеристики проекта дома
| Общая площадь, м.кв. | 148 |
| Количество жилых этажей | 1 |
| Тип кровли | Плоская |
| Перекрытие | Железобетонные плиты |
| Фундамент | Монолитная ребристая плита |
| Наличие подвала | Нет |
| Наличие гаража | Нет |
| Материал стен | Газосиликат, Арболит, Керамзитобетон, Кирпич |
| Толщина стен, мм. | 300 |
| Возможность переделки данного проекта | Да |
* - "Коробка дома" под чистовую отделку из расчёта от 250 USD за 1м.кв. по внешнему контуру дома включает в себя работу и материалы (фундамент, стены без штукатурки, перекрытия, кровля, утеплитель для перекрытия). Для России стоимость 1 м.кв. "коробки дома" от 40000 рос. руб. Данные актуальны на сегодняшний день. В стоимость не входят окна, черновая стяжка, чистовая отделка. Ориентировочная стоимость с сетями и отделкой – около 600 - 900 USD за 1 м.кв.







