Проект одноэтажного дома с гаражом и мансардой
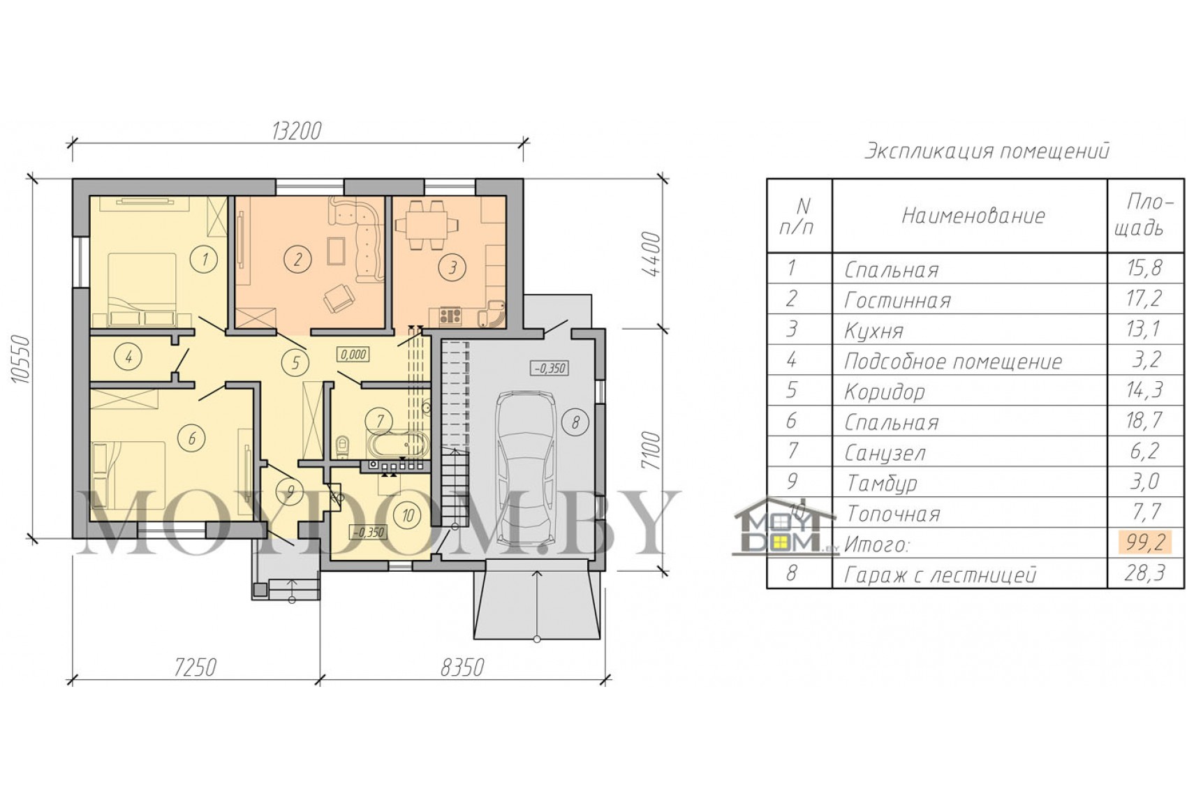
Планировка дома

Зеркальный проект дома
Описание проекта №75
Этот небольшой дом со встроенным гаражом подойдет небольшой динамичной семье, как для постоянного проживания, так и для летнего пребывания. Несмотря на небольшие размеры (проект дома порядка 100 кв м), в нем есть все необходимые для жизни помещения – спальни, кухня-гостиная, санузел. Этот проект подойдет для семьи с детьми или для молодой пары. Жилые площади дома могут быть расширены за счет мансардного второго этажа, можно сделать лестницу вместо гардеробной. Внешне дом выглядит очень приятно и гармонично вписывается в окружающий загородный ландшафт. Дом относительно недорогой и строится легко и быстро.
Фото строящегося дома


Теги: 10 на 13, от 80 до 150 кв.м., от 100 до 150 кв.м., с двускатной кровлей, 2 спальни, с мансардой, с хозпомещением, с гаражом, классический, недорогой, .
Характеристики проекта дома
| Кровля | Металлочерипица |
| Жилая площадь, м.кв. | 51,7 |
| Площадь гаража, хоз постройки | 28,3 |
| Количество спален | 2, 3 |
| Общая площадь, м.кв. | 99,2 дом + 28,3 гараж |
| Количество жилых этажей | 1 + мансарда |
| Фундамент | Буронабивные сваи, Ленточный |
| Наличие подвала | Нет |
| Наличие гаража | Есть |
| Материал стен | Газосиликат, Кирпич, Керамзитобетон, Арболит |
| Толщина стен, мм. | 400, 500 |
| Возможность переделки данного проекта | Да |
* - "Коробка дома" под чистовую отделку из расчёта от 250 USD за 1м.кв. по внешнему контуру дома включает в себя работу и материалы (фундамент, стены без штукатурки, перекрытия, кровля, утеплитель для перекрытия). Для России стоимость 1 м.кв. "коробки дома" от 40000 рос. руб. Данные акутальны на сегодняшний день. В стоимость не входят окна, черновая стяжка, чистовая отделка. Ориентировочная стоимость с сетями и отделкой – около 600 - 900 USD за 1 м.кв.









