Проект дома с мансардой из бруса
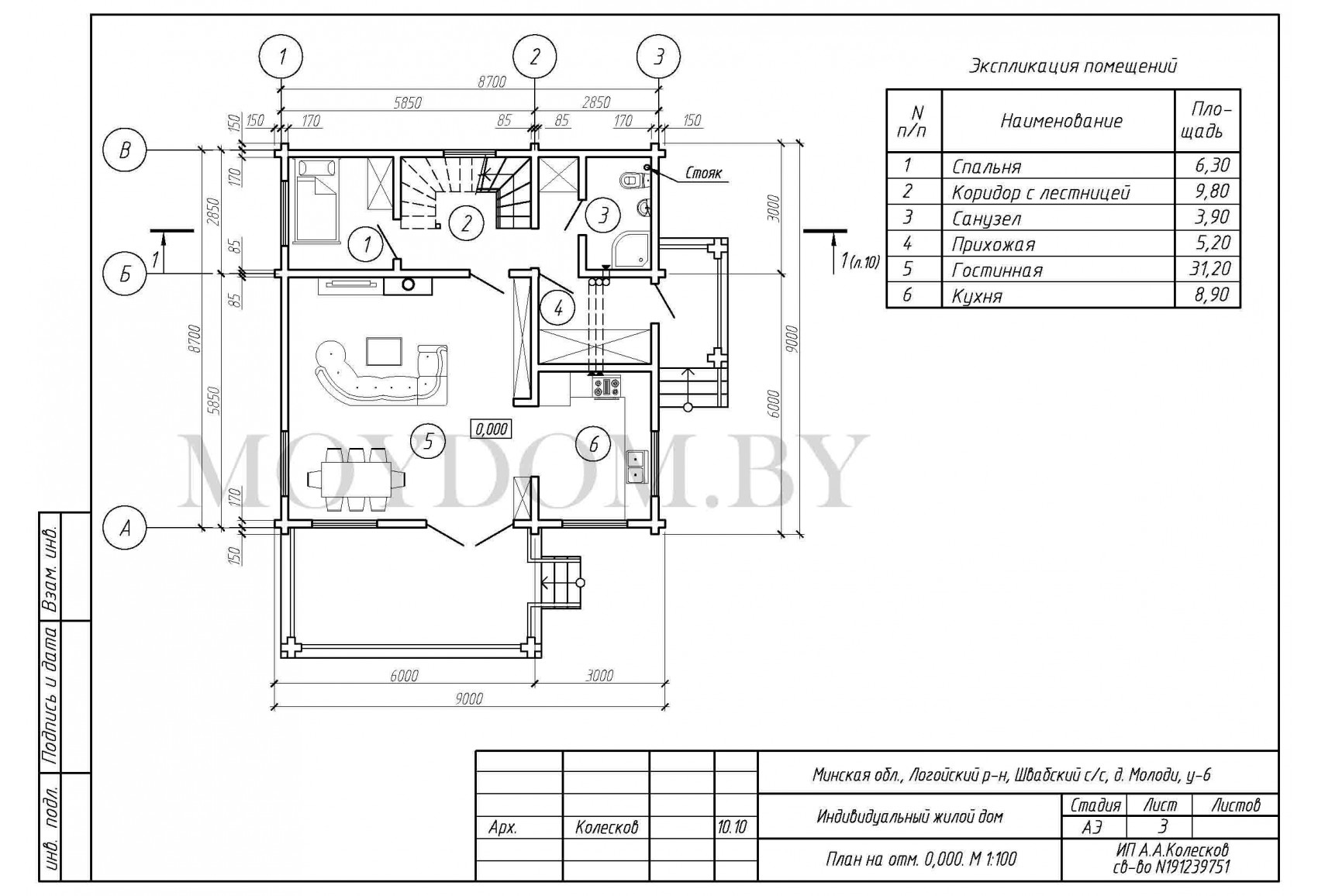
Планировка дома



Зеркальный проект дома
Описание проекта №78
Этот небольшой дом из деревянного бруса просто создан для загородного пейзажа. Проект дома с мансардой из бруса с 3 спальнями строится легко и быстро, в обслуживании прост. Проект дома предполагает наличие мансардного этажа, где размещены две спальни по 22.9 кв.м. каждая, гардероб и совмещенный санузел. Внешний вид дома удачно дополняет крытая терраса для отдыха на свежем воздухе.
Характеристики проекта дома
| Кровля | Металлочерипица |
| Количество спален | 3 |
| Общая площадь, м.кв. | 132 |
| Количество жилых этажей | 1 + мансарда |
| Фундамент | Плавающая монолитная ребристая плита |
| Наличие подвала | Нет |
| Наличие гаража | Нет |
| Материал стен | Дерево |
| Толщина стен, мм. | |
| Возможность переделки данного проекта | Да |
* - "Коробка дома" под чистовую отделку из расчёта от 250 USD за 1м.кв. по внешнему контуру дома включает в себя работу и материалы (фундамент, стены без штукатурки, перекрытия, кровля, утеплитель для перекрытия). Для России стоимость 1 м.кв. "коробки дома" от 40000 рос. руб. Данные актуальны на сегодняшний день. В стоимость не входят окна, черновая стяжка, чистовая отделка. Ориентировочная стоимость с сетями и отделкой – около 600 - 900 USD за 1 м.кв.





