Проект дома из бруса с мансардой со вторым светом 676
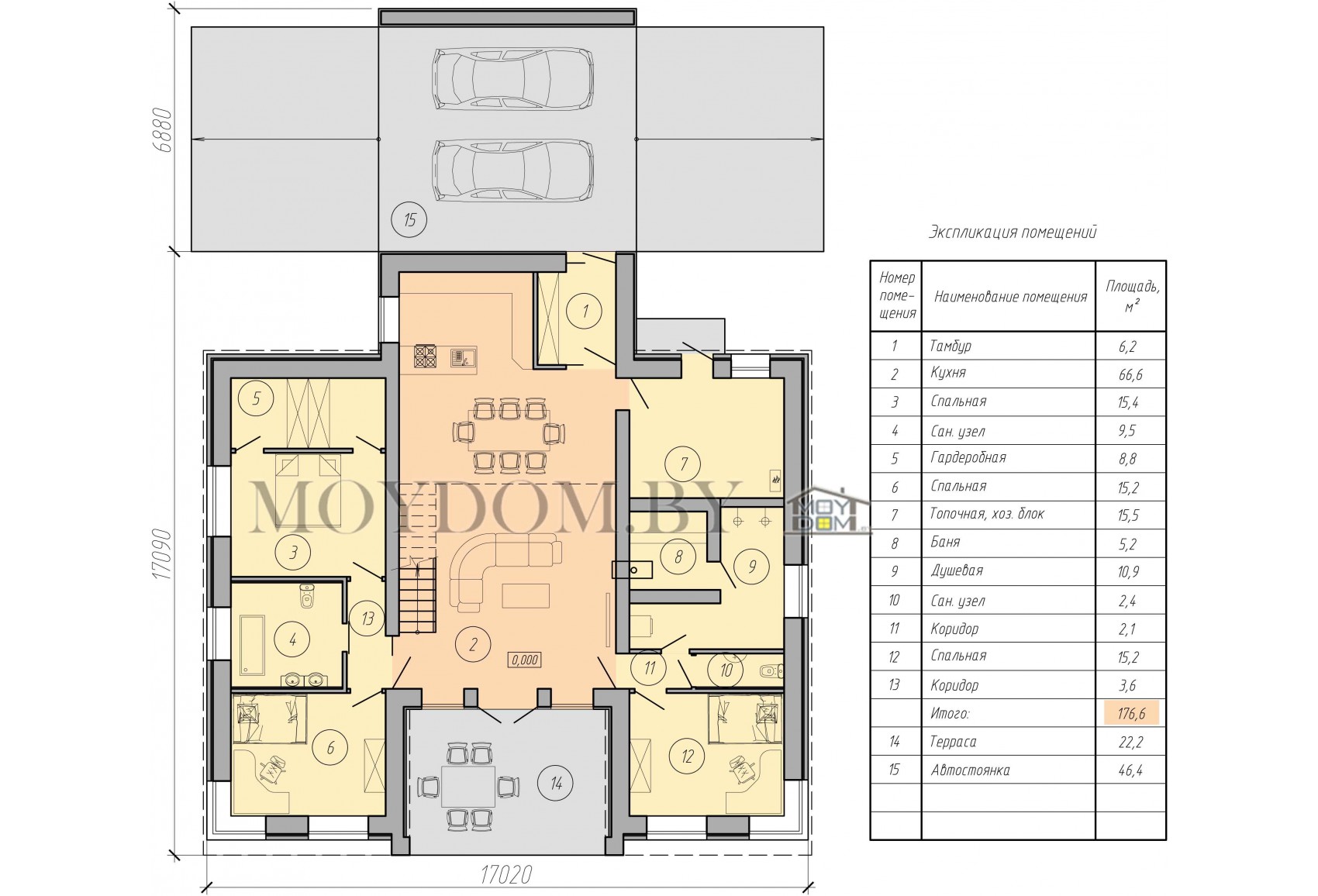
Планировка дома



Зеркальный проект дома
Описание проекта №676
Шикарный проект мансардного дома из профилированного бруса толщиной 200 мм. Большие окна до пола - это одна из главных изюминок этого дома. На первом этаже разместились просторная гостиная, кухня со столовой и выходом на террасу, а также общие комнаты: санузел, холл, гардеробная и кабинет. Пять спален, сейчас одна из них обозначена как кабинет, практичная гардеробная и просторная ванная комната компактно обустроены на втором мансардном этаже, куда ведет центральная деревянная лестница. Навес на 2 машины с 2-мя хозпомещениями с отдельными входами - приятный бонус этого проекта дома.
Теги: 14 на 14, от 250 кв.м., 5 комнат, 4 спальни, с эркером, деревянный, шале, из бруса, с 4-х скатной кровлей, с навесом на 2 авто, с гардеробной, с хозпомещением, с мансардой, с террасой, второй свет, с кабинетом, с окнами в пол.
Характеристики проекта дома
| Кровля | Битумная черепица |
| Жилая площадь, м.кв. | 110,5 |
| Площадь гаража, хоз постройки | 69,8 |
| Количество спален | 4, 5 |
| Общая площадь, м.кв. | 269,2 дом + 49,6 навес для машины |
| Количество жилых этажей | 1 + мансарда |
| Тип кровли | Скатная |
| Фундамент | Буронабивные сваи + плита |
| Наличие подвала | Нет |
| Наличие гаража | Есть |
| Материал стен | Дерево |
| Толщина стен, мм. | 200 |
| Возможность переделки данного проекта | Да |
* - "Коробка дома" под чистовую отделку из расчёта от 250 USD за 1м.кв. по внешнему контуру дома включает в себя работу и материалы (фундамент, стены без штукатурки, перекрытия, кровля, утеплитель для перекрытия). Для России стоимость 1 м.кв. "коробки дома" от 40000 рос. руб. Данные акутальны на сегодняшний день. В стоимость не входят окна, черновая стяжка, чистовая отделка. Ориентировочная стоимость с сетями и отделкой – около 600 - 900 USD за 1 м.кв.












