проект дома с мансардой и гаражом
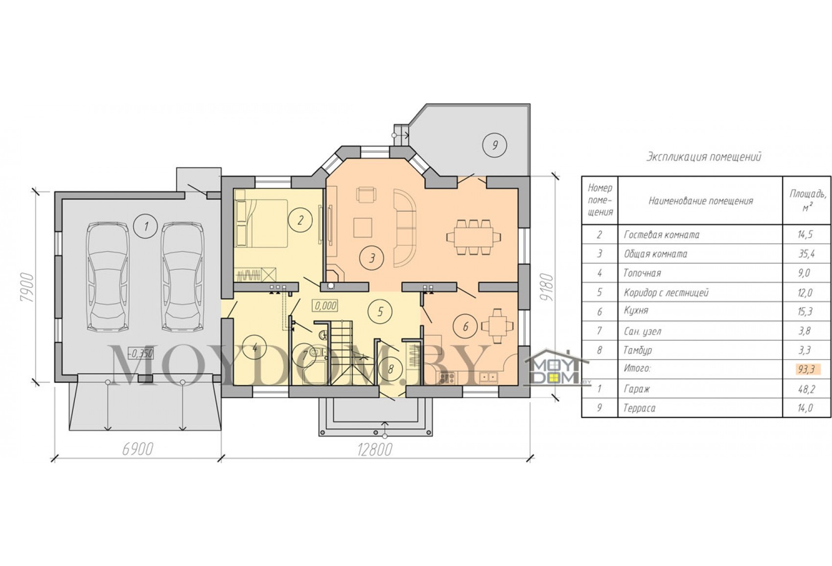
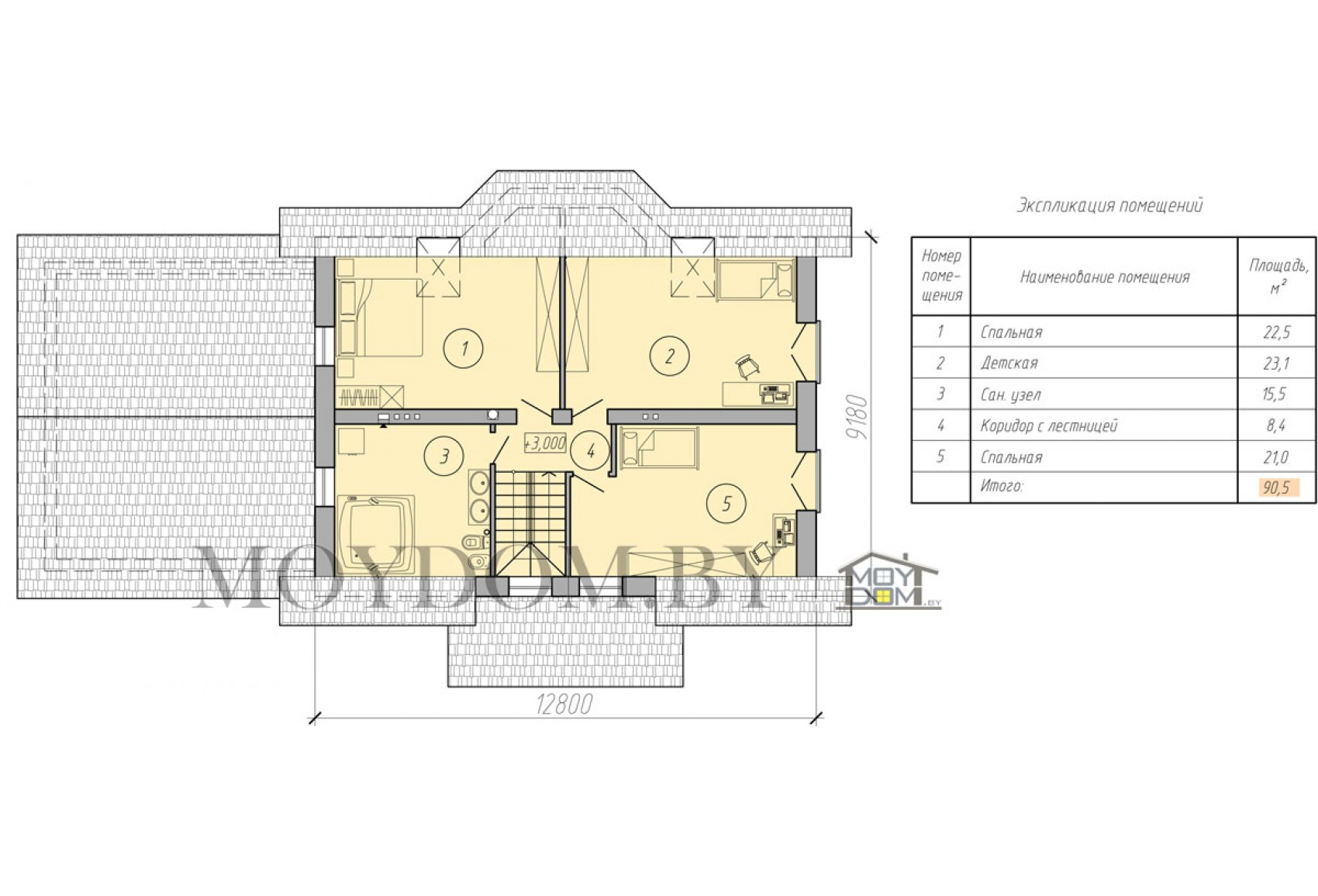
Планировка дома



Зеркальный проект дома
Описание проекта №64
Яркий и необычный – первое впечатление от такого дома с мансардой. Стены красного кирпича под зеленой крышей – удвительно гармоничное сочетание цветов! Здесь прослеживается немного упрощенный английский стиль: прямоугольная симметрия плана дома; высокий цоколь; стены под кирпич; симметрично установленные одинаковые окна; обязательный козырек, держащийся с помощью портика; двускатная крыша с небольшим свесом.
Отличный мансардный дом из блоков с гаражом на 2 автомобиля. В доме предусмотрено все для комфотной жизни на протяжении всего года. Этот проект отлично подойдет для семьи с детьми. На втором этаже можно одну спальню преоборудовать в игровую. Проект этого мансардного дома пользуется стабильным спросом на протяжении нескольких лет.
Теги: 9 на 13, от 150 до 250 кв.м., 4 спальни, в английском стиле, с двускатной кровлей, с гаражом, с мансардой, с террасой, с большой гостиной, с большой ванной, симметричный, с эркером
Характеристики проекта дома
| Кровля | Металлочерипица |
| Площадь гаража, хоз постройки | 48,2 |
| Количество спален | 3, 4 |
| Общая площадь, м.кв. | 183,8 дом + 48,2 гараж на 2 машины |
| Количество жилых этажей | 1 + мансарда |
| Фундамент | Плавающая монолитная ребристая плита |
| Наличие подвала | Нет |
| Наличие гаража | Есть |
| Материал стен | Газосиликат, Кирпич, Арболит, Керамзитобетон |
| Возможность переделки данного проекта | Да |
* - "Коробка дома" под чистовую отделку из расчёта от 250 USD за 1м.кв. по внешнему контуру дома включает в себя работу и материалы (фундамент, стены без штукатурки, перекрытия, кровля, утеплитель для перекрытия). Для России стоимость 1 м.кв. "коробки дома" от 40000 рос. руб. Данные акутальны на сегодняшний день. В стоимость не входят окна, черновая стяжка, чистовая отделка. Ориентировочная стоимость с сетями и отделкой – около 600 - 900 USD за 1 м.кв.









