Проект мансардного дома с двускатной кровлей с элементами австрийского стиля
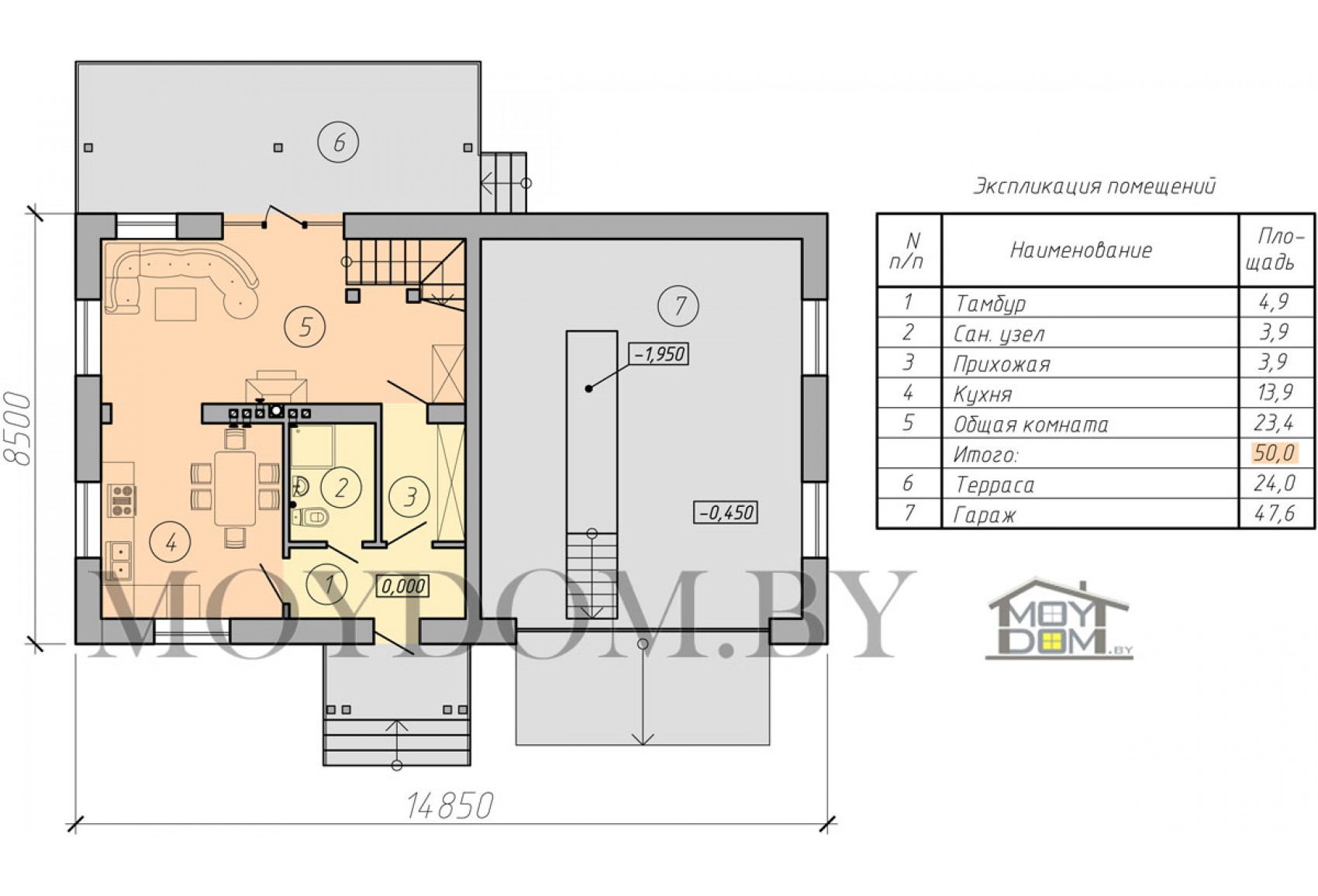
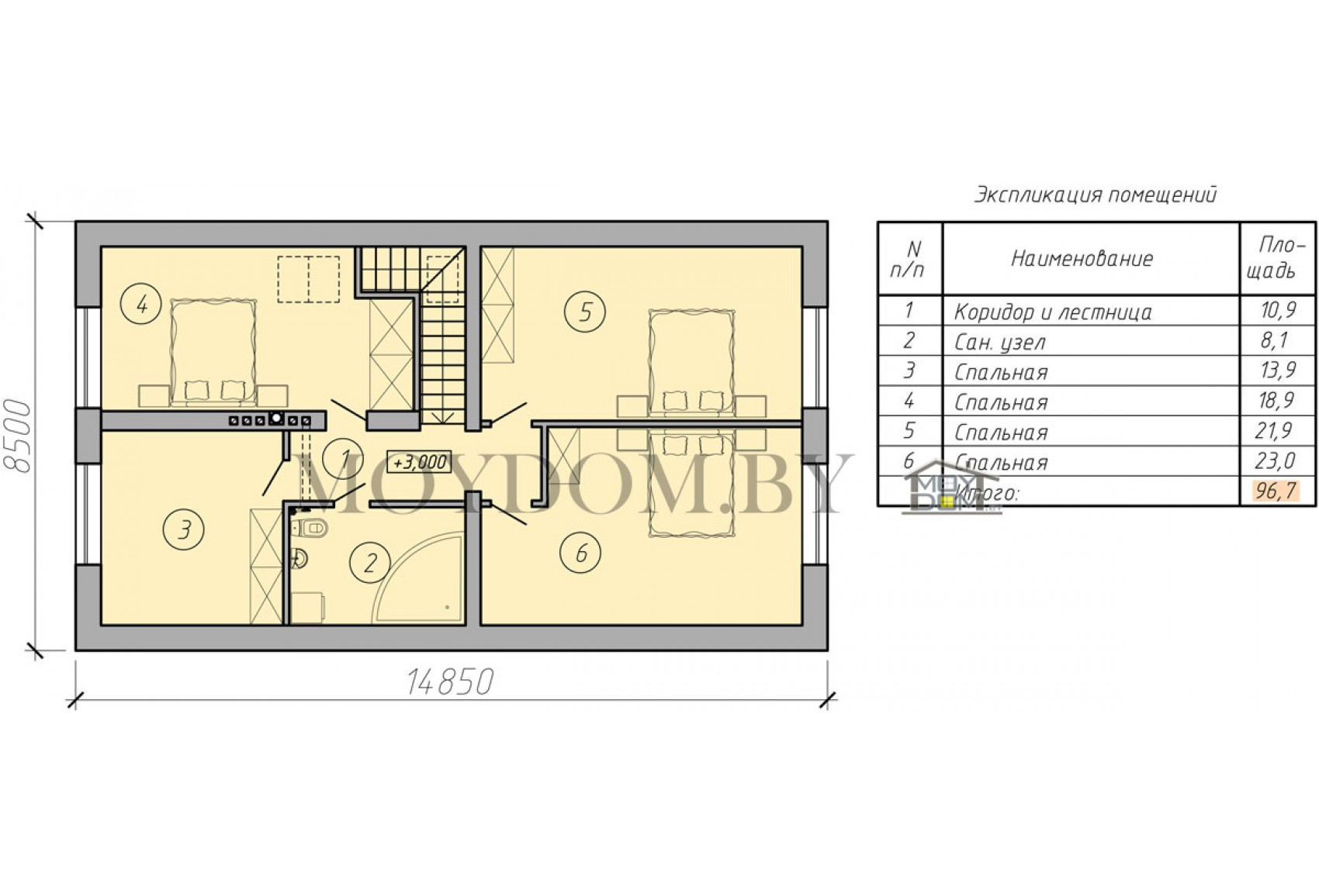
Планировка дома



Описание проекта №63
Представляем проект дома на 200 м.кв с мансардой, гаражом и террасой, во внешней отделке которого есть элементы австрийского стиля. К ним относятся декоративные стропильные балки контрастного со стенами цвета, внутри частью этого стиля является почти полностью открытое пространство первого этажа. По сути, только санузел в виде отдельной комнаты, прихожая, общая комната и кухня плавно переходят одна в другую. Отличный мансардный дом из блоков с просторным гаражом. Здесь предусмотрено все для комфотной жизни на протяжении всего года. Этот проект отлично подойдет для семьи с детьми. На втором мансардном этаже 4 спальни, которые вы можете использовать по своему усмотрению. К первому этажу примыкает просторный гараж.
Теги: 9 на 14, от 100 до 150 кв.м., от 150 до 250 кв.м., с двускатной кровлей, из газобетона, 4 спальни, с мансардой, с гаражом, с террасой, с большой гостиной, необычный.
Характеристики проекта дома
| Кровля | Металлочерипица |
| Количество спален | 4 |
| Общая площадь, м.кв. | 146,7 дом + 47,6 гараж |
| Количество жилых этажей | 1 + мансарда |
| Фундамент | Плавающая монолитная ребристая плита |
| Наличие подвала | Нет |
| Наличие гаража | Есть |
| Материал стен | Газосиликат, Кирпич, Арболит, Керамзитобетон |
| Возможность переделки данного проекта | Да |
* - "Коробка дома" под чистовую отделку из расчёта от 250 USD за 1м.кв. по внешнему контуру дома включает в себя работу и материалы (фундамент, стены без штукатурки, перекрытия, кровля, утеплитель для перекрытия). Для России стоимость 1 м.кв. "коробки дома" от 40000 рос. руб. Данные акутальны на сегодняшний день. В стоимость не входят окна, черновая стяжка, чистовая отделка. Ориентировочная стоимость с сетями и отделкой – около 600 - 900 USD за 1 м.кв.








