Проект современного дома с гаражом и навесом
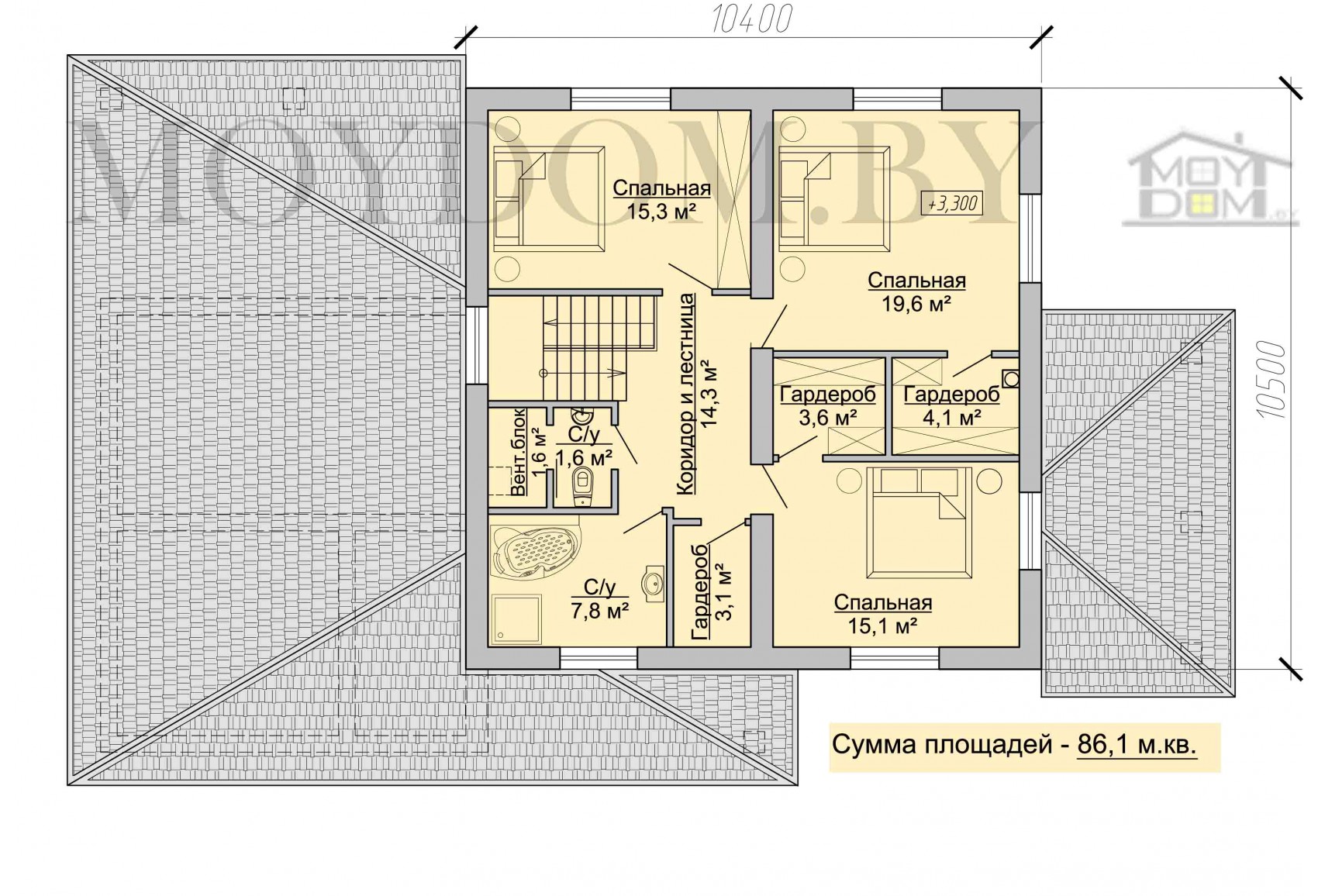
Планировка дома


Зеркальный проект дома
Описание проекта 423-C1
Один из самых лучших проектов современного дома из простых и недорогих двухэтажных домов с гаражом и навесом для машины. Высота потолка 3 метра, окна все по 1,75 м. Все последние современные конструктивные решения в этом проекте. Светлый тон стен гармонирует с темно-коричневой четырехскатной кровлей дома. Строгие геометрические линии постройки и правильные ровные формы отделочных элементов придают этому дому элегантность.Классическое размещение комнат: на первом этаже справа от входа вместительная совмещенная кухня-столовая-гостиная с открытой террасой.За лестницей прямо разместилась просторная спальня. Слева от входа в дом через прачечную можно пройти в комнату отдыха и гараж. Из гаража ведет дверь под навес.Тихий и спокойный второй этаж вместил в себя 3 просторных спальни, две из которых обладают своими гардеробными. Здесь же большая ванная комната, санузел и отдельная гардеробная. Двухэтажный дом очень комфортный и функциональный.
Фото строящегося дома по похожему проекту 423

Характеристики проекта дома
| Кровля | Металлочерипица |
| Жилая площадь, м.кв. | 96,4 |
| Площадь гаража, хоз постройки | 40.0; 26.9 |
| Количество спален | 4 |
| Общая площадь, м.кв. | 198,9 дом + 23,4 гараж |
| Количество жилых этажей | 2 |
| Фундамент | Ленточный |
| Наличие гаража | Есть, Навес для машины |
| Материал стен | Газосиликат, Арболит, Керамзитобетон, Кирпич |
| Толщина стен, мм. | 400 |
| Возможность переделки данного проекта | да |
* - "Коробка дома" под чистовую отделку из расчёта от 250 USD за 1м.кв. по внешнему контуру дома включает в себя работу и материалы (фундамент, стены без штукатурки, перекрытия, кровля, утеплитель для перекрытия). Для России стоимость 1 м.кв. "коробки дома" от 40000 рос. руб. Данные актуальны на сегодняшний день. В стоимость не входят окна, черновая стяжка, чистовая отделка. Ориентировочная стоимость с сетями и отделкой – около 600 - 900 USD за 1 м.кв.





