Проект двухэтажного современного дома
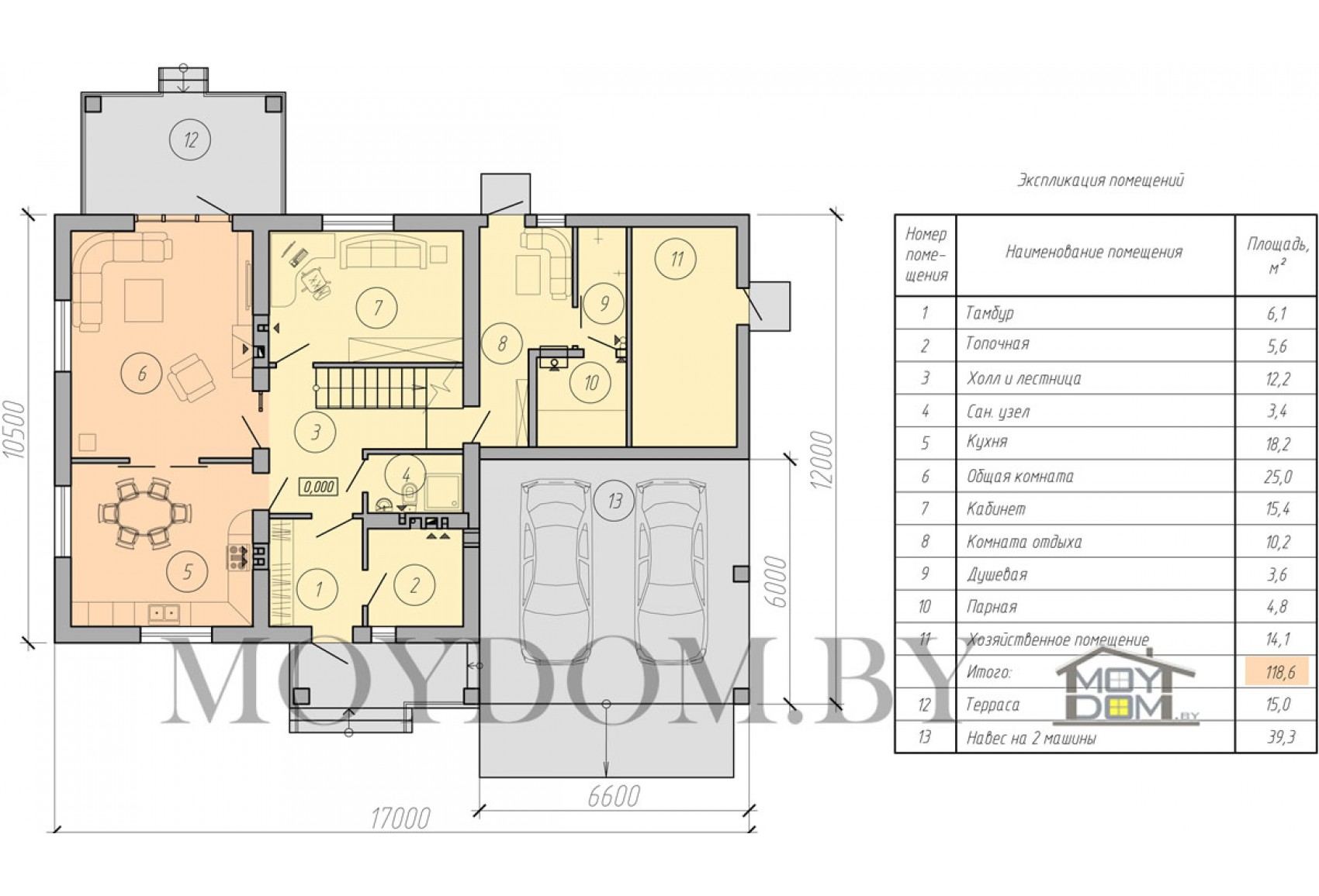
Планировка дома


Зеркальный проект дома
Описание проекта №423-A11
Один из самых лучших проектов современного дома из простых и недорогих двухэтажных домов. Высота потолка 3 метра, окна все по 1,75 м. Все последние современные конструктивные решения в этом проекте.
Классическое размещение жилых комнат: на первом этаже левое крыло занимают вместительная кухня-столовая и гостиная, разделенные дверью-купе. За лестницей разместился кабинет, который при желании можно сделать спальней. За навесом спланирована парная с душевой и комнатой отдыха, которая завершает картину первого этажа. Тихий и спокойный второй этаж вместил в себя 3 просторных спальни, большую ванную комнату и отдельную гардеробную. Ну, и дополнительный бонус – навес для 2 машин, крыша которого составляет единое целое с навесом над главным входом в дом. А с обратной стороны навеса расположено хозяйственное помещение, функционал которого определять вам. Двухэтажный дом очень комфортный и функциональный.
Фото строящихся домов


Характеристики проекта дома
| Кровля | Металлочерипица |
| Жилая площадь, м.кв. | 96,4 |
| Площадь гаража, хоз постройки | 39.3; 14.1 |
| Количество спален | 3, 4 |
| Общая площадь, м.кв. | 205,0 дом + 39,3 навес для машины |
| Количество жилых этажей | 2 |
| Фундамент | Плавающая плита 200мм |
| Наличие гаража | Навес для машины |
| Материал стен | Газосиликат, Арболит, Керамзитобетон, Кирпич |
| Толщина стен, мм. | 400 |
| Возможность переделки данного проекта | да |
* - "Коробка дома" под чистовую отделку из расчёта от 250 USD за 1м.кв. по внешнему контуру дома включает в себя работу и материалы (фундамент, стены без штукатурки, перекрытия, кровля, утеплитель для перекрытия). Для России стоимость 1 м.кв. "коробки дома" от 40000 рос. руб. Данные актуальны на сегодняшний день. В стоимость не входят окна, черновая стяжка, чистовая отделка. Ориентировочная стоимость с сетями и отделкой – около 600 - 900 USD за 1 м.кв.


