Проект двухэтажного дома с навесом на две машины
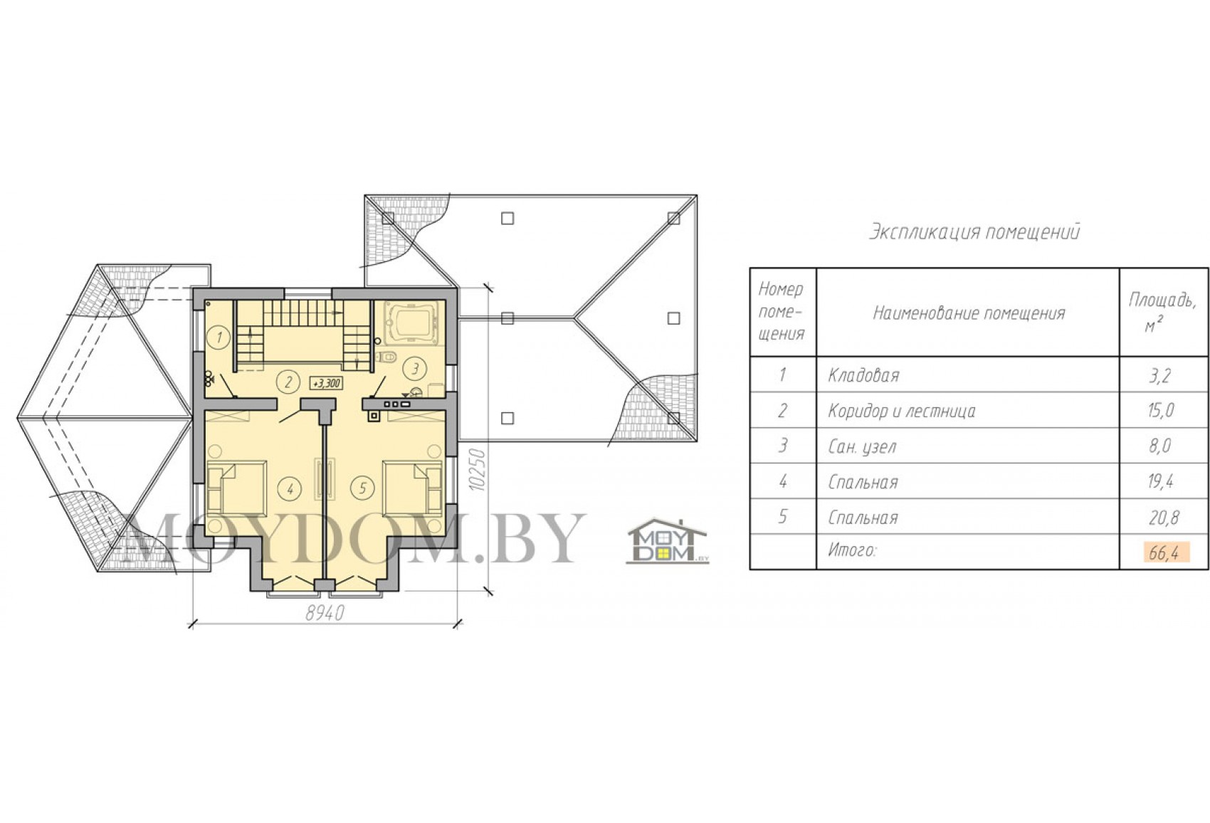
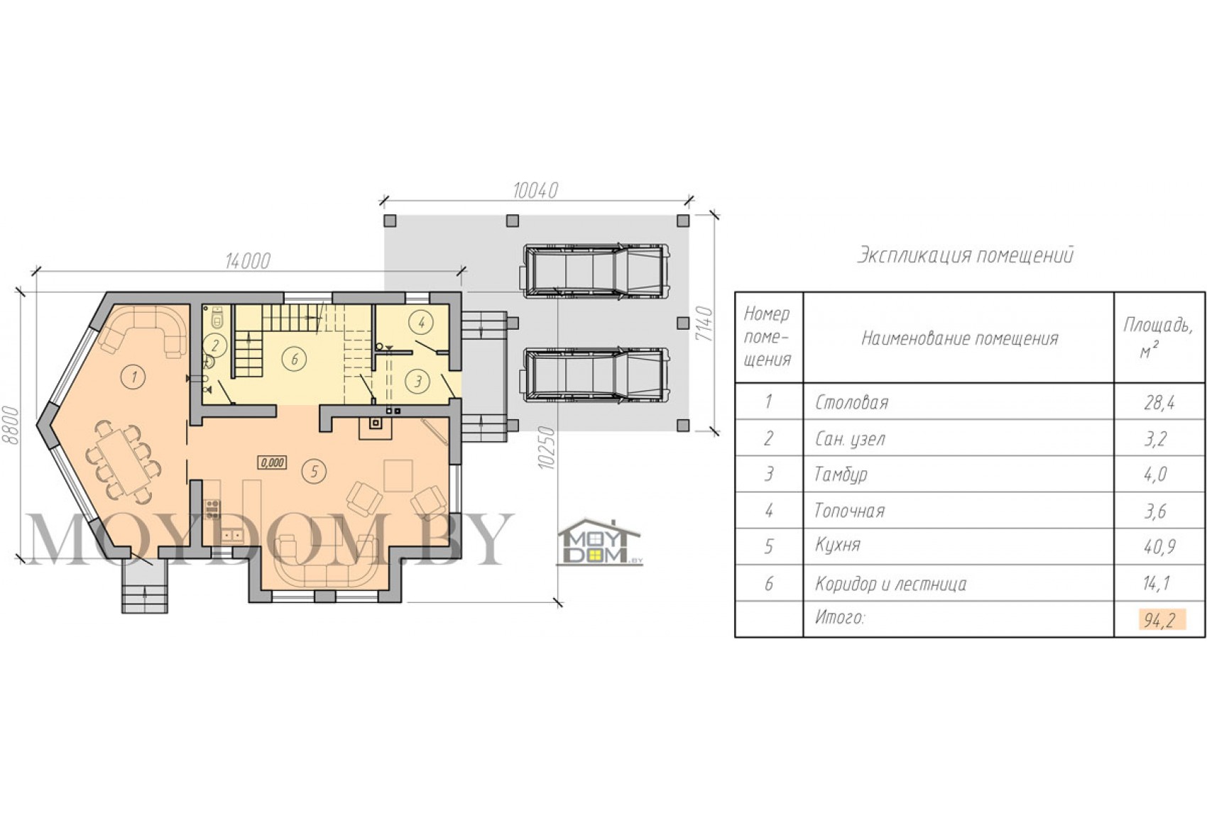
Планировка дома



Зеркальный проект дома
Описание проекта №38
Проект дома в два этажа и навесом на две машины. В этом двухэтажном доме все комнаты просторные, светлые. Необычно и практично - вот так кратко можно охарактеризовать этот проект. Дом для проживания семьи из 2-4 человек. Первый этаж занимают 2 просторные комнаты: большая кухня с каминной зоной для отдыха и гостиная-столовая. В доме имеется 2 спальни на втором этаже, санузел, кладовая. Из гостиной есть выход на задний двор, который можно обустроить для игр и отдыха.
Большой, просторный, вмещающий немаленькую семью – этот дом по праву занимает свое место среди популярных проектов домов.
Теги: 10 на 14, от 150 до 250 кв.м., с навесом для машины, 2 спальни, с 4-х скатной кровлей, с угловой гостиной-столовой, с большой кухней, с кладовой, с французским балконом, с панорамными окнами
Характеристики проекта дома
| Кровля | Металлочерипица |
| Площадь гаража, хоз постройки | |
| Количество спален | 2 |
| Общая площадь, м.кв. | 160.60 |
| Количество жилых этажей | 2 |
| Фундамент | Плавающая монолитная ребристая железобетонная плита или плавающая монолитная железобетонная плита |
| Наличие подвала | Нет |
| Наличие гаража | Навес для машины |
| Материал стен | Газосиликат, Арболит, Керамзитобетон, Кирпич |
| Толщина стен, мм. | 400 |
| Возможность переделки данного проекта | Да |
* - "Коробка дома" под чистовую отделку из расчёта от 250 USD за 1м.кв. по внешнему контуру дома включает в себя работу и материалы (фундамент, стены без штукатурки, перекрытия, кровля, утеплитель для перекрытия). Для России стоимость 1 м.кв. "коробки дома" от 40000 рос. руб. Данные акутальны на сегодняшний день. В стоимость не входят окна, черновая стяжка, чистовая отделка. Ориентировочная стоимость с сетями и отделкой – около 600 - 900 USD за 1 м.кв.













