Проект дома с гаражом и террасой 243-F1
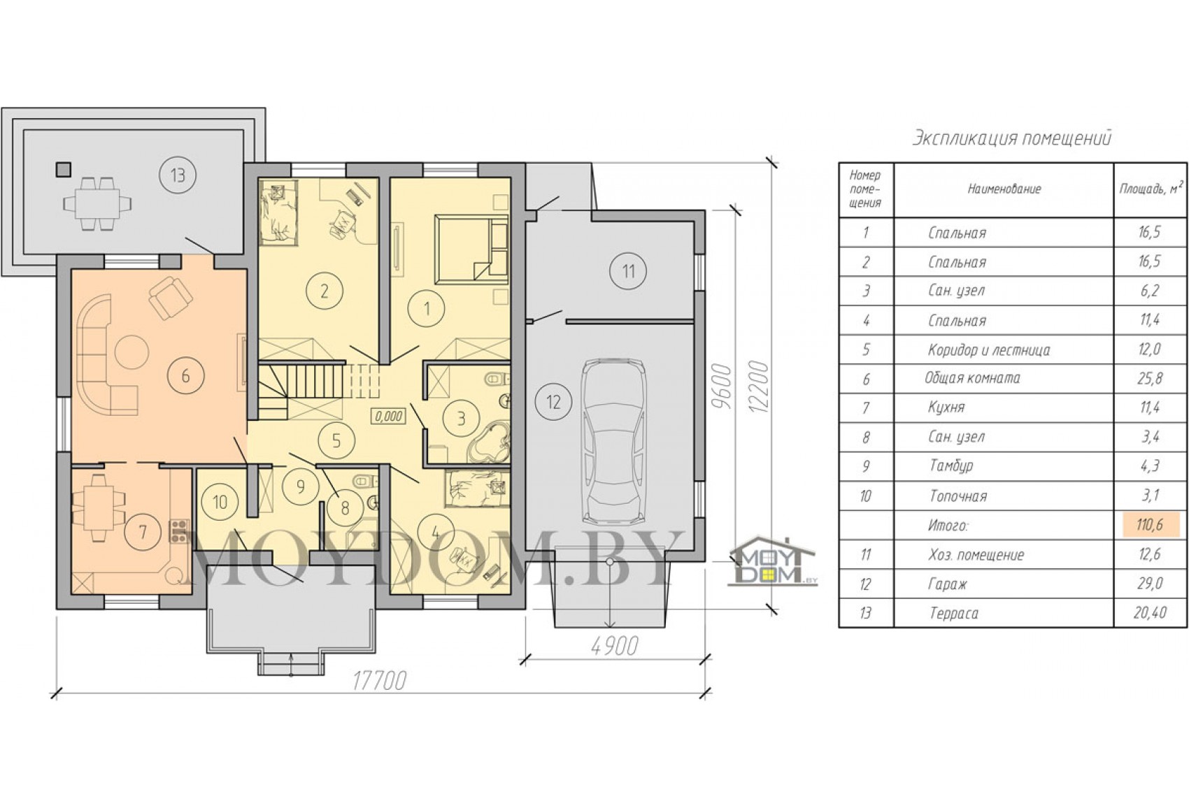
Планировка дома

Зеркальный проект дома
Описание проекта №243-F1
Стильный проект одноэтажного дома большой площади с гаражом на 1 машину и небольшим хозпомещением с выходом на задний двор. На сайте так же представлена целая серия проектов 243. В этом доме есть все, чтобы небольшой семье было комфортно в нем проживать постоянно. Представленный проект одноэтажного дома имеет несколько вариантов с гаражом, с гаражом, но поменьше и без гаража, со вторым светом. Одноэтажные проекты подходят для людей, интересующихся экономичным жильем, которое недорого стоить и легко отапливать.
Другие проекты одноэтажных домов вы можете просмотреть в каталоге на нашем сайте.
Фото строящегося дома



Интерьер дома

Теги: Серия проектов домов 243, от 150 до 250 кв.м, с террасой, с мансардой, с гаражом, с 4-х скатной кровлей, топ, 3 спальни, 12 на 15.
Характеристики проекта дома
| Кровля | Металлочерипица |
| Жилая площадь, м.кв. | 44,4 |
| Площадь гаража, хоз постройки | 29.0; 12.6 |
| Количество спален | 3 |
| Общая площадь, м.кв. | 110,6 дом + 29,0 гараж |
| Количество жилых этажей | 1 + мансарда |
| Фундамент | Плавающая монолитная ребристая железобетонная плита или плавающая монолитная железобетонная плита |
| Наличие подвала | Нет |
| Наличие гаража | Есть |
| Материал стен | Газосиликат, Керамзитобетон, Арболит, Кирпич |
| Толщина стен, мм. | 400 |
| Возможность переделки данного проекта | Да |
* - "Коробка дома" под чистовую отделку из расчёта от 250 USD за 1м.кв. по внешнему контуру дома включает в себя работу и материалы (фундамент, стены без штукатурки, перекрытия, кровля, утеплитель для перекрытия). Для России стоимость 1 м.кв. "коробки дома" от 40000 рос. руб. Данные акутальны на сегодняшний день. В стоимость не входят окна, черновая стяжка, чистовая отделка. Ориентировочная стоимость с сетями и отделкой – около 600 - 900 USD за 1 м.кв.








