Проект дома 243-B-22
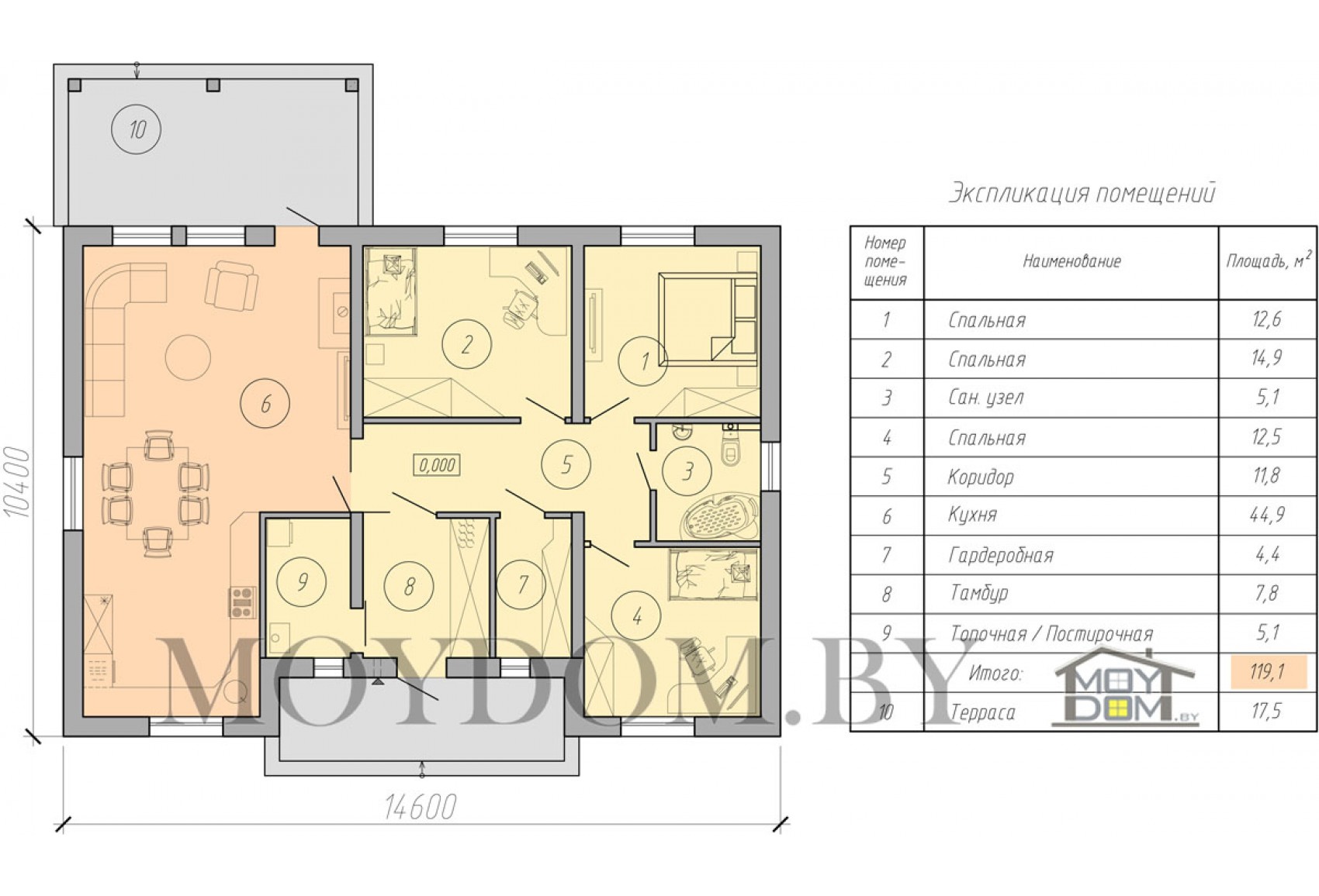
Планировка дома

Зеркальный проект дома
Описание проекта №243-В-22
Проект одноэтажного дома из золотой серии проекта 243, которые пользуются постоянным спросом и интересом. Проект этого одноэтажного дома позволит вам за небольшие деньги построить свой собственный уютный дом. В доме есть все необходимое для комфортной жизни небольшой семьи: кухня-гостиная, 3 спальни, а также ванная, хозяйственные помещения. Из большой кухни-гостиной есть выход на уютную террасу. Очень много людей ждали уменьшенной копии 243-го проекта и вот, наконец, мы сделали такой проект дома. Следующая версия будет на основе этого проекта, только с гаражом и навесом на террасе.
Готовый проект одноэтажного дома вы можете купить в нашей архитектурной мастерской, связавшись с нами любым удобным для вас способом.

Фото строительства дома

Интерьер дома

Характеристики проекта дома
| Кровля | Металлочерипица |
| Жилая площадь, м.кв. | 36,4 |
| Количество спален | 3 |
| Общая площадь, м.кв. | 119,1 |
| Количество жилых этажей | 1 |
| Фундамент | Плавающая монолитная ребристая железобетонная плита или плавающая монолитная железобетонная плита |
| Наличие подвала | Нет |
| Наличие гаража | Нет |
| Материал стен | Газосиликат, Арболит, Керамзитобетон, Кирпич |
| Толщина стен, мм. | 400 |
| Возможность переделки данного проекта | Да |
* - "Коробка дома" под чистовую отделку из расчёта от 250 USD за 1м.кв. по внешнему контуру дома включает в себя работу и материалы (фундамент, стены без штукатурки, перекрытия, кровля, утеплитель для перекрытия). Для России стоимость 1 м.кв. "коробки дома" от 40000 рос. руб. Данные актуальны на сегодняшний день. В стоимость не входят окна, черновая стяжка, чистовая отделка. Ориентировочная стоимость с сетями и отделкой – около 600 - 900 USD за 1 м.кв.


