Проект стильного одноэтажного дома с мансардой и вторым светом
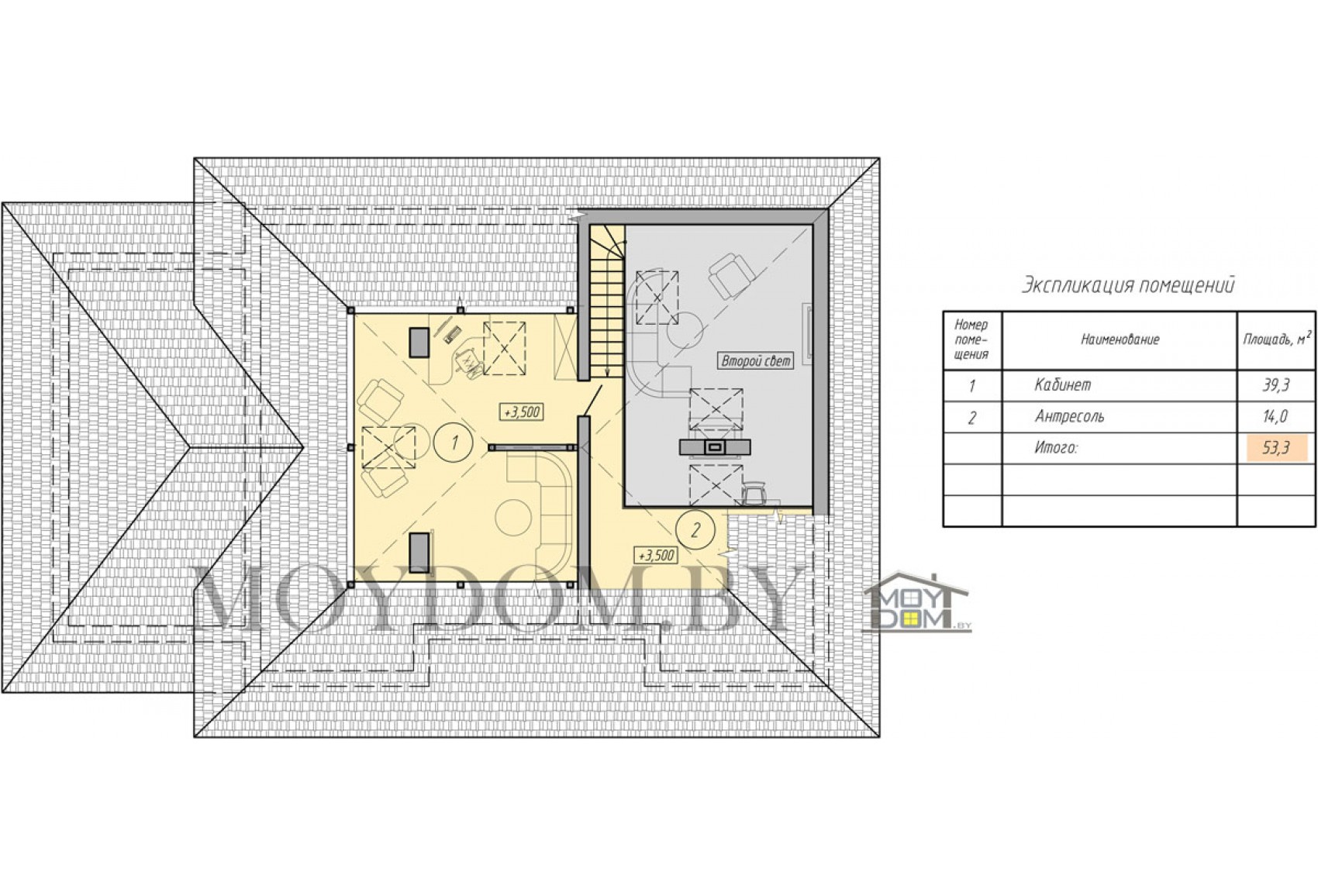
Планировка дома


Зеркальный проект дома
Описание проекта №243-A11+
Стильный проект одноэтажного дома небольшой площади с гаражом на 1 машину. В этом доме есть все, чтобы небольшой семье было комфортно в нем проживать постоянно. Представленный проект одноэтажного дома имеет несколько вариантов планировки, вам только остаётся выбрать для себя подходящий. Этот вариант 243 со вторым светом. Одноэтажные проекты подходят для людей, интересующихся экономичным жильем, которое недорого стоить и легко отапливать.
Другие проекты одноэтажных домов вы можете просмотреть в каталоге на нашем сайте.

Фото строящегося дома



Интерьер дома


Характеристики проекта дома
| Кровля | Металлочерипица |
| Количество спален | 3, 4 |
| Общая площадь, м.кв. | 211,0 дом + 27,8 гараж |
| Количество жилых этажей | 1 + мансарда |
| Фундамент | Плавающая монолитная ребристая железобетонная плита или плавающая монолитная железобетонная плита |
| Наличие подвала | Нет |
| Наличие гаража | Есть |
| Материал стен | Газосиликат, Арболит, Керамзитобетон, Кирпич |
| Толщина стен, мм. | 400 |
| Возможность переделки данного проекта | Да |
* - "Коробка дома" под чистовую отделку из расчёта от 250 USD за 1м.кв. по внешнему контуру дома включает в себя работу и материалы (фундамент, стены без штукатурки, перекрытия, кровля, утеплитель для перекрытия). Для России стоимость 1 м.кв. "коробки дома" от 40000 рос. руб. Данные актуальны на сегодняшний день. В стоимость не входят окна, черновая стяжка, чистовая отделка. Ориентировочная стоимость с сетями и отделкой – около 600 - 900 USD за 1 м.кв.





