Проект двухэтажного двухквартирного дома
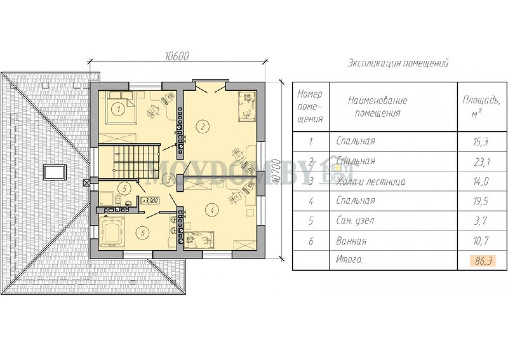
Планировка дома



Зеркальный проект дома
Описание проекта №169
Данный проект родился из проекта №95. Этот красивый проект двухэтажного дома удобен для перспективы разделения дома на две отдельные квартиры. Проектом предусмотрено два отдельных входа, что в принципе является уникальной особенностью дома. Снаружи дом никак не выглядит двухквартирным. Примечательно, что ситуации в жизни бывают разными, к примеру, дети захотят жить отдельно, но средств нет, вот тогда и можно будет этот дом легко разделить на две квартиры. Достаточно просто заложить проём, ведущий с лестницы с площадки второго этажа на первый. А если ваш участок не имеет уклона, то гараж и вход при желании можно "поднять".



Характеристики проекта дома
| Кровля | Металлочерипица |
| Жилая площадь, м.кв. | 98 |
| Площадь гаража, хоз постройки | 27 |
| Количество спален | 3, 4 |
| Общая площадь, м.кв. | 172,8 дом + 27,0 гараж |
| Количество жилых этажей | 2 |
| Фундамент | Ленточный |
| Наличие подвала | Есть |
| Наличие гаража | Есть |
| Материал стен | Газосиликат, Кирпич, Арболит, Керамзитобетон |
| Толщина стен, мм. | 400, 500 |
| Возможность переделки данного проекта | Да |
* - "Коробка дома" под чистовую отделку из расчёта от 250 USD за 1м.кв. по внешнему контуру дома включает в себя работу и материалы (фундамент, стены без штукатурки, перекрытия, кровля, утеплитель для перекрытия). Для России стоимость 1 м.кв. "коробки дома" от 40000 рос. руб. Данные актуальны на сегодняшний день. В стоимость не входят окна, черновая стяжка, чистовая отделка. Ориентировочная стоимость с сетями и отделкой – около 600 - 900 USD за 1 м.кв.








