Проект двухэтажного дома в классическом стиле с большой гостиной
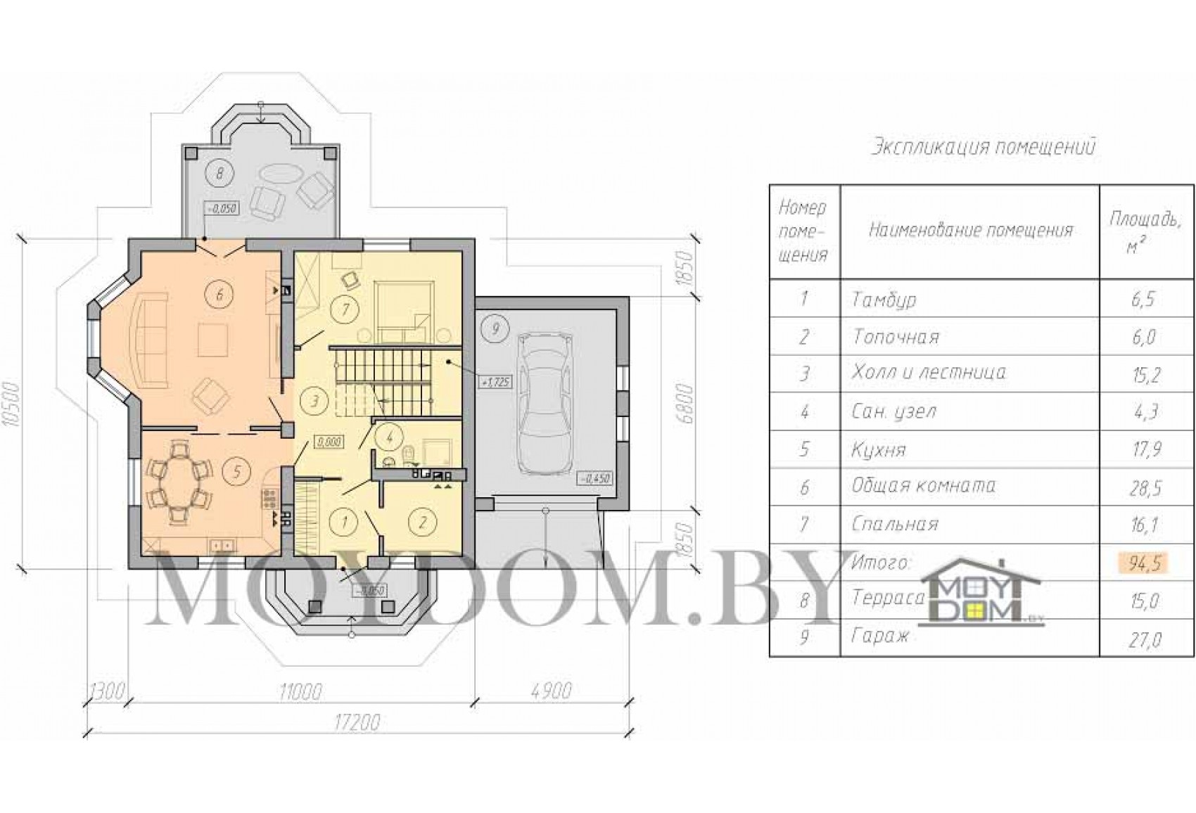
Планировка дома


Зеркальный проект дома
Описание проекта №133
Один из самых замечательных проектов домов с эркером в нашей мастерской. Этот проект дома с гаражом пользуется стабильным спросом. Это связано с тем, что он удобный и функциональный. Есть гараж, что очень актуально, просторные комнаты, шикарная гостиная, гардероб... Первый этаж отдан под хозяйственные нужды и прием гостей, второй этаж – спальная зона. Благодаря наличию в примыкающей пристройке гаража дом занимает небольшую территорию и подходит для небольших участков. При всей своей практичности дом выглядит довольно респектабельно.


Интерьер дома



Фото строящегося дома







Характеристики проекта дома
| Кровля | Металлочерипица |
| Жилая площадь, м.кв. | 102 |
| Площадь гаража, хоз постройки | 27 |
| Количество спален | 3, 4 |
| Общая площадь, м.кв. | 190,1 дом + 27,0 гараж |
| Количество жилых этажей | 2 |
| Высота 1-го этажа, м. | 3.2 |
| Высота 2-го этажа, м. | 3 |
| Фундамент | Буронабивные сваи, Забивные сваи |
| Наличие подвала | Нет |
| Наличие гаража | Есть |
| Материал стен | Газосиликат, Кирпич, Керамзитобетон, Арболит |
| Толщина стен, мм. | 400 |
| Возможность переделки данного проекта | Да |
* - "Коробка дома" под чистовую отделку из расчёта от 250 USD за 1м.кв. по внешнему контуру дома включает в себя работу и материалы (фундамент, стены без штукатурки, перекрытия, кровля, утеплитель для перекрытия). Для России стоимость 1 м.кв. "коробки дома" от 40000 рос. руб. Данные актуальны на сегодняшний день. В стоимость не входят окна, черновая стяжка, чистовая отделка. Ориентировочная стоимость с сетями и отделкой – около 600 - 900 USD за 1 м.кв.






Конечно, можете подъехать, только заранее нужно договориться о дне и времени. Звоните и приезжайте.