Проект двухэтажного дома 10 на 12 с эркером
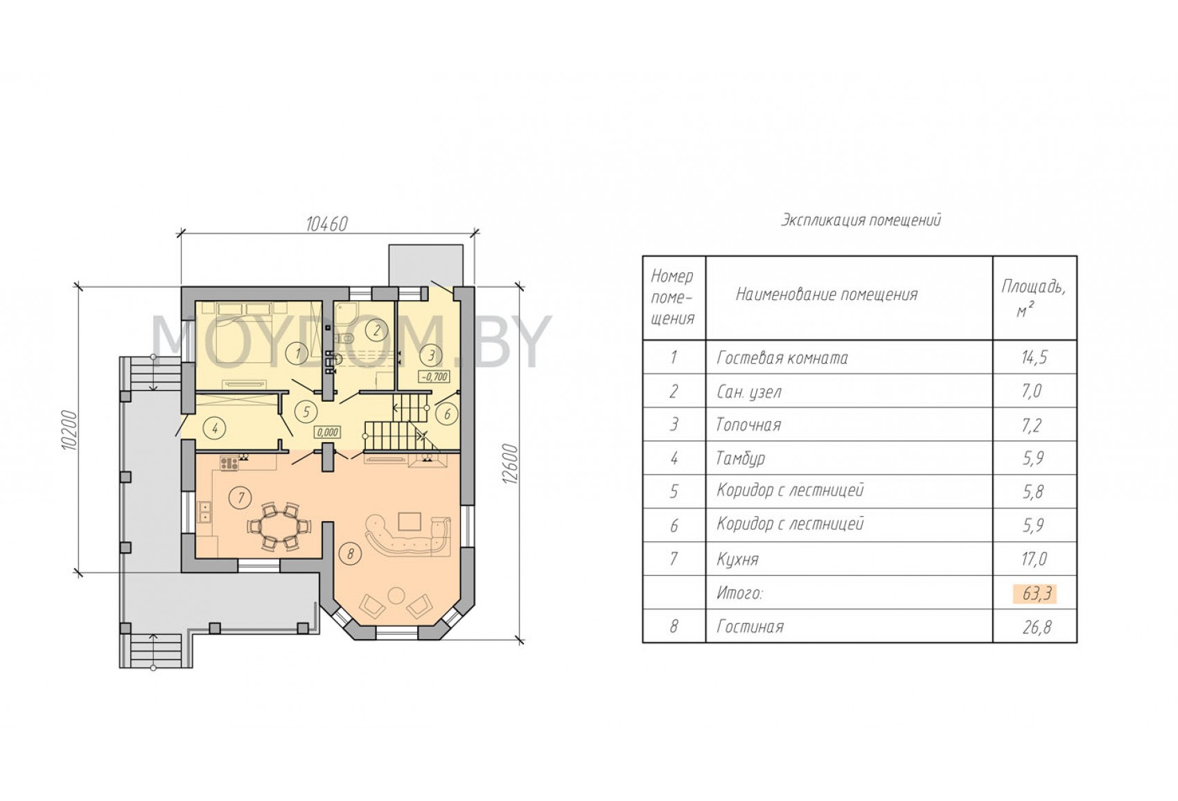
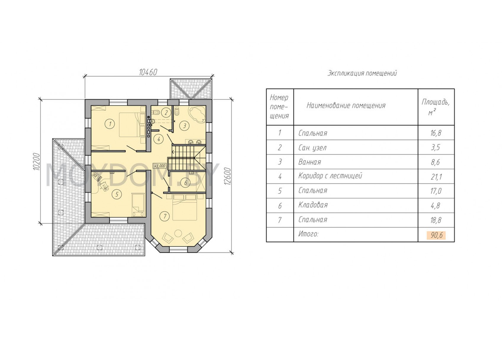
Планировка дома

Зеркальный проект дома
Описание проекта №118
Этот готовый проект двухэтажного дома 10 на 12 с эркером понравится тем, для кого внутреннее содержание важнее внешнего, и кто привык считать свой дом своей крепостью. Довольно лаконичный и строгий внешне, без вычурных украшений и легкомысленных балкончиков, этот дом все свое несет внутри. При этом ему присуще особое очарование загородного дома, который подразумевает возможность посидеть за столиком на свежем воздухе, потому что у дома есть достаточно просторное крыльцо под крышей, которая является частью второго этажа. При незначительных корректировках можно получить и более подходящую для вас планировку, наша мастерская может вам в этом помочь.
Характеристики проекта дома
| Кровля | Металлочерипица |
| Количество спален | 4 |
| Общая площадь, м.кв. | 168.7 |
| Количество жилых этажей | 2 |
| Фундамент | Ленточный, Буронабивные сваи |
| Наличие подвала | Нет |
| Наличие гаража | Нет |
| Материал стен | Газосиликат, Кирпич, Арболит, Керамзитобетон |
| Толщина стен, мм. | 400, 500 |
| Возможность переделки данного проекта | Да |
* - "Коробка дома" под чистовую отделку из расчёта от 250 USD за 1м.кв. по внешнему контуру дома включает в себя работу и материалы (фундамент, стены без штукатурки, перекрытия, кровля, утеплитель для перекрытия). Для России стоимость 1 м.кв. "коробки дома" от 40000 рос. руб. Данные актуальны на сегодняшний день. В стоимость не входят окна, черновая стяжка, чистовая отделка. Ориентировочная стоимость с сетями и отделкой – около 600 - 900 USD за 1 м.кв.






