Проект одноэтажного дома с террасой в стиле барнхаус 395-b
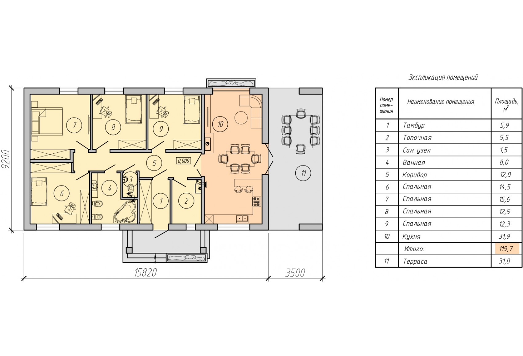
Планировка дома

Описание проекта № 395-b
Современные дома всё больше завоёвывают рынок, поэтому мы решили представить свой проект, в котором есть и современный вид, и удобная планировка. Дом имеет навесной фасад из металла с фальцевым креплением, частично фасад оштукатурен, можно заменить на отделку клинкером и многим другим. Планировка похожа на проект 395-А, но вид совершенно другой. Этот одноэтажный дом выполнен в стиле барнхаус. Дом подходит для узких участков шириной от 15,2 метра. Этот проект будет интересен тем, у кого, кроме узкого участка дорога расположена с юга, что тоже часто встречается. Не сказать, что это плохо, но, конечно, лучше когда дорога расположена не с южной стороны.
Теги: проекты домов серии 395, с террасой, 9 на 16, от 80 до 150 кв.м., 3 спальни, недорогой, небольшой, дачный, компактный, с двускатной кровлей, современный, барнхаус, южная дорога, дорога с юга, 4 спальни, амбарный стиль, второй свет.
Характеристики проекта дома
| Кровля | Металлочерипица |
| Количество спален | 4 |
| Общая площадь, м.кв. | 120 |
| Количество жилых этажей | 1 |
| Наличие подвала | Нет |
| Наличие гаража | Нет |
| Материал стен | Блоки, Газосиликат, Арболит, Кирпич, Керамзитобетон |
* - "Коробка дома" под чистовую отделку из расчёта от 250 USD за 1м.кв. по внешнему контуру дома включает в себя работу и материалы (фундамент, стены без штукатурки, перекрытия, кровля, утеплитель для перекрытия). Для России стоимость 1 м.кв. "коробки дома" от 40000 рос. руб. Данные акутальны на сегодняшний день. В стоимость не входят окна, черновая стяжка, чистовая отделка. Ориентировочная стоимость с сетями и отделкой – около 600 - 900 USD за 1 м.кв.









